Versatile Property with Commercial Space and Rooftop Terrace

EUR €1,090,000 (USD $1,278,697) *current conversion
Son Servera, IB, 07550, Spain

Property Highlights

  • Corner building with triple street access
  • Large open-plan basement for parking/storage
  • Bright ground floor commercial space with office
  • Rooftop terrace with views
  • Close to golf club and beaches
  • Pedestrian promenade nearby for easy access

Overview

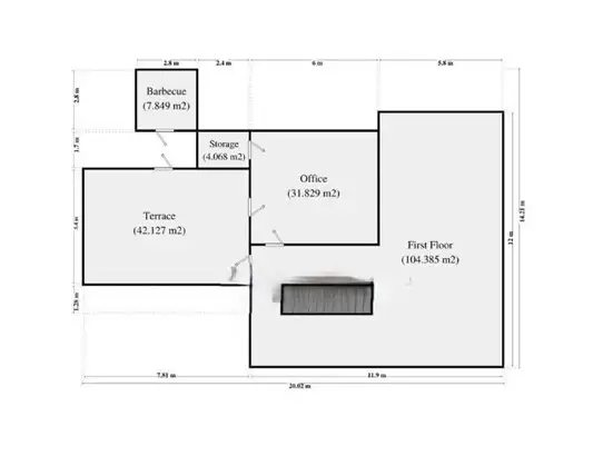
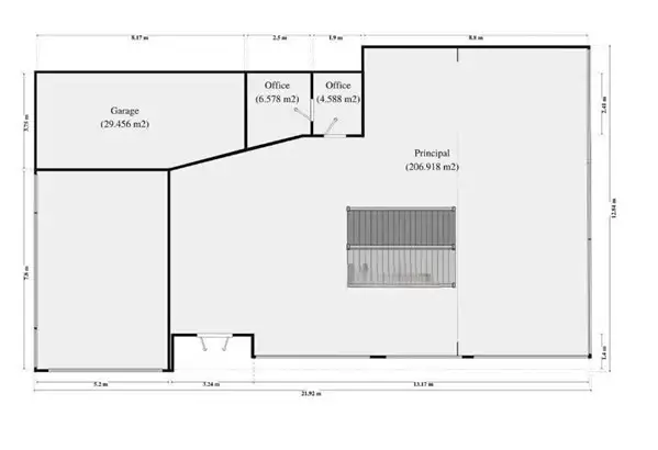
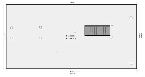
Located in the heart of Son Servera, this property offers versatility, a strategic location, and high investment potential. The building, spread over three floors plus a basement, combines commercial premises and residential space, with the possibility of converting the premises into up to 6 VPL apartments – ideal for investors or bespoke projects.~~In the 250 m² open-plan basement, there is space for multiple uses, from private parking to storage or a technical area. The 250 m² ground floor features a bright commercial space with large windows, an office, and storage room, suitable for retail, showroom, coworking, or wellness centre.~~The first floor offers a 105 m² premises plus a 32 m² office and a 50 m² terrace, with the option of adapting it as a studio, workshop, or apartment. The second floor houses the 150 m² single-family home with three bedrooms, one bathroom, one guest toilet, living room, dining room, kitchen, laundry, enclosed gallery, and a rooftop terrace with views.~~The building is on a corner, with access from three streets and a side facing the pedestrian promenade that connects Cala Millor with the town centre. Son Servera offers full services, a golf club, and close proximity to the beaches of Cala Millor and Costa de los Pinos, combining connectivity and an attractive setting.
Show More Show Less

Property Features

Son Servera, IB, 07550, Spain offers the following features:

Bedrooms: 3
Bathrooms: 2 Full
Living Area: 8535sf
Property Type: Other
Status: Active
Reference ID: 261963907074

Map

The Local Vibe