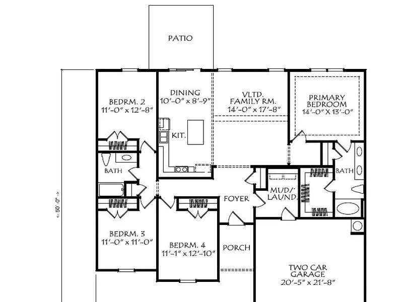
Spacious New Ranch Home on 0.7-acre Homesite

USD $292,730
62 Lee Road, Smiths Station, Alabama, 36877, USA

Property Highlights

  • Spacious 0.7-acre homesite
  • Split-bedroom floorplan for privacy
  • Luxurious Primary Suite with walk-in closet
  • Open kitchen with large island
  • Attached 2-car garage with mudroom
  • Private back patio for outdoor living

Overview

Discover the charm of the Autumn floorplan, a beautiful new 4-bedroom, 2-bath ranch home situated on a spacious .7-acre homesite. This desirable split-bedroom plan offers privacy, featuring a luxurious Primary Suite with double vanities, a separate tub and shower, and a generous walk-in closet. The heart of the home is the bright, open-concept living area, where the kitchen with a large island flows seamlessly into the family room and dining area. Practical features include an inviting front porch, an entry foyer, and a convenient mudroom/laundry room setup off the attached 2-car garage. Enjoy outdoor living on your private back patio!
Show More Show Less

Property Features

62 Lee Road, Smiths Station, Alabama, 36877, USA offers the following features:

Bedrooms: 4
Bathrooms: 2 Full
Living Area: 1667sf
Property Type: Residential
Status: Active
Reference ID: 224111

What's Nearby

Local businesses near 62 Lee Road, Smiths Station, Alabama, 36877, USA:

School: 3 miles
Grocery/Shopping Center: 3.1 miles
Gym: 3.2 miles
Hospital: 4.5 miles
Public Transportation: 6.4 miles
Police Station: 8.3 miles

Map