Expansive Home on 0.74 Acres with Creek Views

USD $424,900
328 North Brookshore Drive, Shorewood, Illinois, 60404, USA

Property Highlights

  • 0.74-acre lot with mature trees and creek
  • Open concept with cathedral ceilings
  • Kitchen with hardwood floors and stainless appliances
  • Wood-burning fireplace in dining room
  • Two-car garage with epoxy flooring
  • Primary suite with walk-in closets and double vanity

Overview

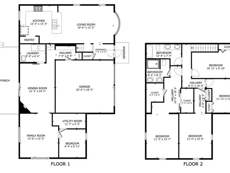
With tasteful upgrades throughout and a beautiful piece of land, this fully upgraded and move-in ready home offers space to enjoy both indoors and outdoors. Step inside the foyer complete with a coat closet, featuring ceramic tile flooring that continues throughout the home. The open concept design with cathedral ceilings connects the living room to the kitchen, which offers original hardwood floors, stainless steel appliances, a pantry closet, and ample cabinet storage. A few steps lead you to the breathtaking dining room with a wood-burning fireplace and sliding glass doors that open to a deck overlooking nature. A laundry room, half bath, and access to the two-car garage with epoxy flooring complete this level. Another step down, the cozy family room features oversized windows with beautiful backyard views, blacked out ceiling, and recessed lighting. An adjoining bedroom, set apart from the others, would be ideal for guests or an office. Four additional bedrooms and two full bathrooms are located on the upper level. The spectacular primary suite showcases two walk-in closets, a private bathroom with a double vanity, and a tiled, walk-in shower with modern finishes. The additional bedrooms are complete with new carpet, fresh paint, and generous closets, and the second bathroom is conveniently equipped with a bathtub and double vanity. Don't miss this exceptional opportunity to own a home that combines character, space, and a naturally beautiful setting. Some upgrades include: AC/Furnace - 2025. Roof - 2024. Plumbing - 2024. Epoxy Garage Flooring - 2024. Schedule your showing today!
Show More Show Less

Property Features

328 North Brookshore Drive, Shorewood, Illinois, 60404, USA offers the following features:

Bedrooms: 5
Bathrooms: 2 Full | 1 Half
Living Area: 2514sf
Property Type: Residential
Status: Active
Reference ID: 12508752

Map