Modern 3-bedroom Home Near Carkeek Park and Amenities

USD $669,900
9752 Holman Road Northwest, Seattle, Washington, 98177, USA

Property Highlights

  • Open-concept living with large dining space
  • Chef-inspired kitchen with stainless appliances
  • Expansive primary suite with spa-like bath
  • Private west-facing balcony with sunset views
  • Private fenced-in patio
  • Steps from parks, dining, and transit

Overview

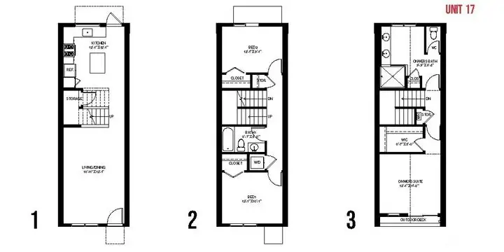
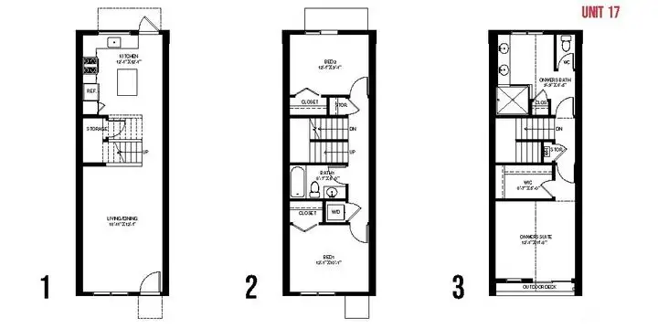
**RATES START AT 2.875%!** Tour Elm by Shelter Homes today! This stunning 3-bedroom home spans over 1,500 sq ft & features bright, open-concept living, large dining space, a chef-inspired kitchen w/ premium stainless steel appliances, & a roomy great room. The expansive top-floor primary suite offers a luxurious 4-piece spa-like bath & private west-facing balcony—perfect for soaking in sunsets or enjoying a morning cup of coffee! Floor to ceiling windows, a private fenced in patio - Live steps from QFC, Met Market, top-rated dining, cozy cafés, Soundview Playfield, and the lush trails of Carkeek Park. Enjoy quick access to I-5, Hwy 99, & multiple transit options. Modern elegance, comfort, convenience, & your next home await you at Elm.
Show More Show Less

Property Features

9752 Holman Road Northwest, Seattle, Washington, 98177, USA offers the following features:

Bedrooms: 3
Bathrooms: 1 Full | 1 Half
Living Area: 1524sf
Property Type: Townhouse
Status: Active
Reference ID: 2364193

Map