Renovated 4-plex with Updated Interiors in Ballard

USD $1,757,000
917 Northwest 57th Street, Seattle, Washington, 98107, USA

Property Highlights

  • Painted brick 4-plex in Ballard neighborhood
  • In-unit washer/dryers in all units
  • Renovated kitchens with stainless appliances
  • Quartz countertops and updated baths
  • Newer roof installed
  • Fenced dog yard with parking spots

Overview

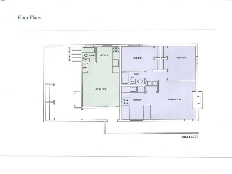
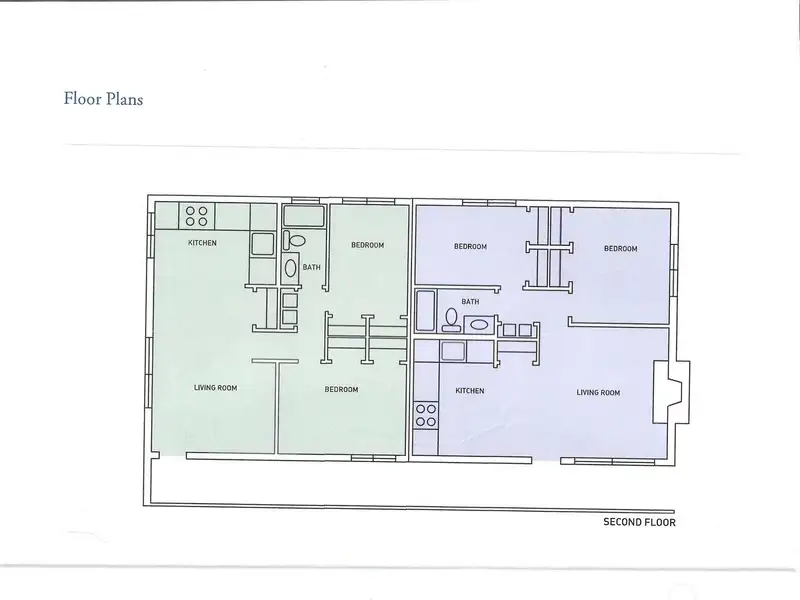
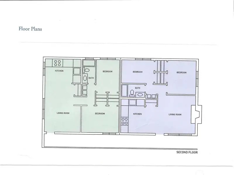
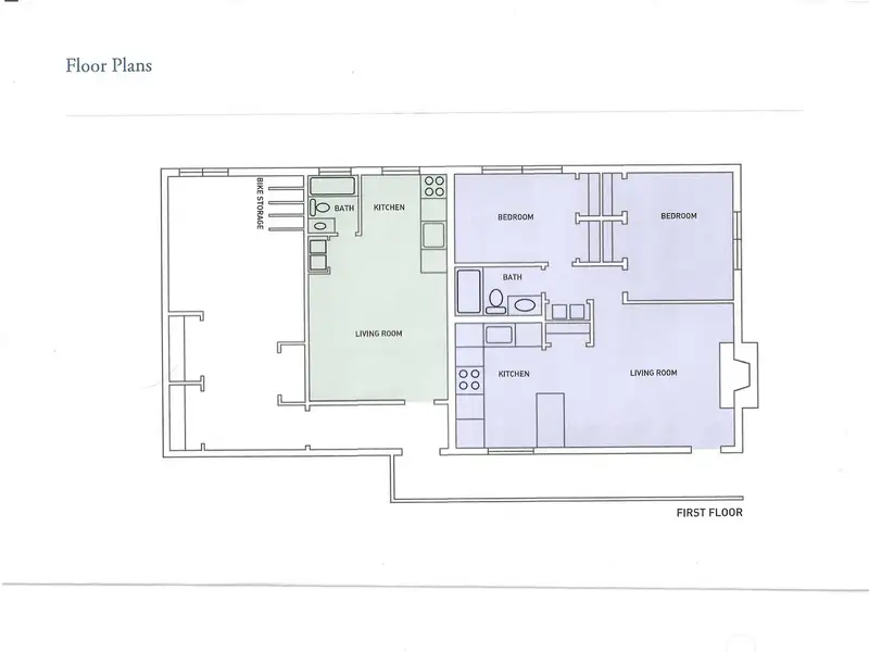
Painted Brick 4-plex in vibrant Ballard Neighborhood. Surrounded by thriving Residential and Commercial growth. Quiet, Mid Block Location. Spacious Living Spaces consisting of (3) 2BR units and (1) Studio. In unit Washer/Dryers, Ample Closets, 2 units with Fireplaces and additional Storage Lockers. Thoughtfully renovated in 2017. New Windows, Stainless Steel Appliances, Quartz Counters, Laminate Flooring, updated Kitchens & Baths. Property also has a newer Roof. fenced in Dog Yard and 2 off street Parking Spots. A Solid Investment with long term growth potential.
Show More Show Less

Property Features

917 Northwest 57th Street, Seattle, Washington, 98107, USA offers the following features:

Living Area: 3600sf
Property Type: MultiFamily
Status: Active
Reference ID: 2415174

What's Nearby

Local businesses near 917 Northwest 57th Street, Seattle, Washington, 98107, USA:

Public Transportation: < 1 mile
School: < 1 mile
Gym: < 1 mile
Grocery/Shopping Center: < 1 mile
Hospital: < 1 mile
Police Station: 2.2 miles

Map