New Construction Home on 6 Acres with Serene Pond Views

USD $1,700,000
14325 Brockton Lane North, Rogers, Minnesota, 55374, USA

Property Highlights

  • 6-acre lot on Dayton-Rogers border
  • Open layout with white oak flooring
  • Kitchen with walk-in pantry and island
  • Owner's suite with spa-like ensuite
  • Covered porch with pond views
  • Lower-level family room with wet bar

Overview

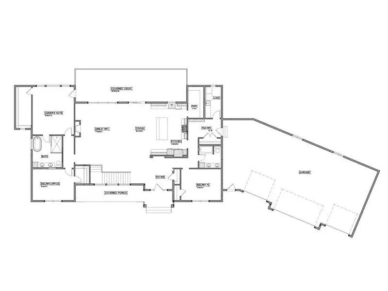
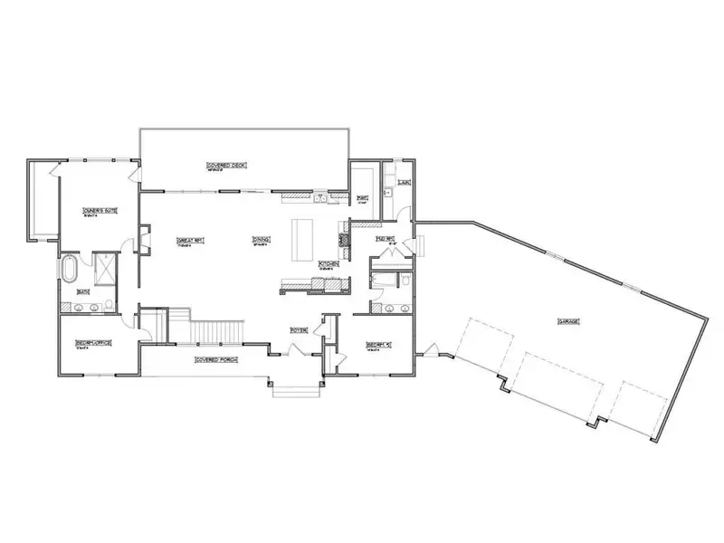
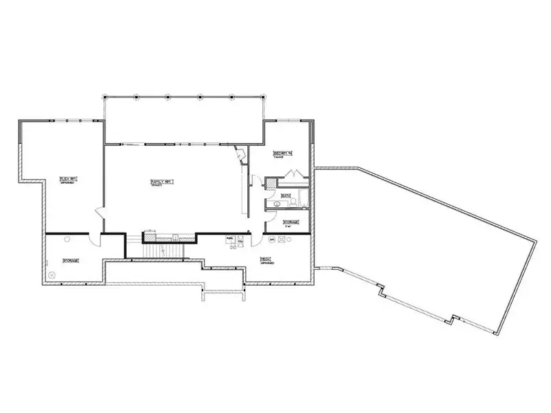
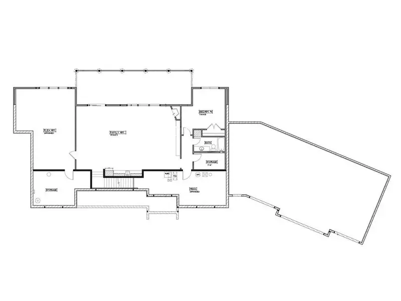
This breathtaking new construction home is perfectly positioned on a sprawling 6-acre lot on the border of Dayton & Rogers! This stunning rambler offers a thoughtfully designed open layout that exudes both comfort and elegance and is loaded with features throughout. From the beautiful white oak flooring to the tiled bathrooms showcasing gorgeous accent walls, this home is meant to impress everyone that sees it. The heart of the home is the dream kitchen, complete with an oversized walk-in pantry, a massive center island and naturally stained white oak cabinets. It is the ideal space for entertaining and daily living alike. The luxurious owner's suite includes stone-tiled flooring, a spa-like ensuite, and private access to a massive 40 x 12 covered porch—perfect for enjoying the serene pond water views year-round. The oversized family room in the lower level is a true showstopper, featuring a wet bar that makes it an entertainer’s paradise. With its blend of modern amenities and timeless style, this home is your opportunity to experience unparalleled craftsmanship in a peaceful, picturesque setting.
Show More Show Less

Property Features

14325 Brockton Lane North, Rogers, Minnesota, 55374, USA offers the following features:

Bedrooms: 4
Bathrooms: 3 Full
Living Area: 3918sf
Property Type: Residential
Status: Pending
Reference ID: 6731321

Map