Columbia River Views and Remodeled Living in Rainier

USD $299,999
29590 Fir Street, Rainier, Oregon, 97048, USA

Property Highlights

  • Stunning views of Lewis and Clark Bridge
  • Remodeled inside and out
  • Two decks and carport with storage
  • Stainless steel kitchen appliances
  • Open living room with woodstove
  • Easy access to Columbia River activities

Overview

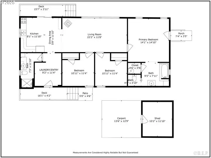
Hard to find a home under $300K with Columbia River Views! Relax and enjoy stunning views of the Lewis and Clark bridge spanning between Rainier Oregon to Longview Washington. This manufactured home offers 3 bedrooms, 2-bathroom and has been remodeled inside and out. New FURNACE! New flooring, carpet, inside/exterior paint, modern fixtures, new appliances, lighting, two decks and a carport with storage! Step inside to 1,264 square feet of comfortable living space. The home features stainless steel appliances and a convenient buffet/eat-up nook in the kitchen area. The open living room with woodstove keep it cozy and warm. Plenty of windows fill the room with natural light, and slider to enjoy the side deck. Large primary bedroom includes private access to the backyard, & a spacious bathroom, with walk in closet, and big tub add to the charm. The two additional bedrooms, full guest bathroom. Bright indoor Laundry/mudroom finish out the floorplan. The property's location provides easy access to water activities including boating, kayaking, and fishing on the Columbia River. For shopping and services, Longview, Washington is just minutes away, offering hospital facilities, grocery stores, and retail centers. Rainier is a riverside community along the banks of the Columbia River. Walking trails and sightseeing is a common activity in Rainier. Parks, schools, local events happen throughout the year, and you don't want to miss one of the biggest 4th of July fireworks show on the river! Rainier provides a quiet setting while being perfectly located. A few miles to Longview, one hour from Portland, & one hour from the Oregon Coast! Schedule a tour!
Show More Show Less

Property Features

29590 Fir Street, Rainier, Oregon, 97048, USA offers the following features:

Bedrooms: 3
Bathrooms: 2 Full
Living Area: 1264sf
Property Type: Mfghome
Status: Active
Reference ID: 416153852

Map