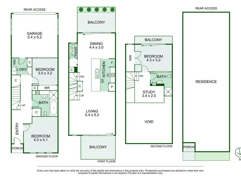
Tucked away from the energy of High Street yet just moments from its vibrant offerings, this tri-level three bedroom, two bathroom plus a study townhouse with double garage is a true inner-city revelation, whisper-quiet inside thanks to premium double-glazed European windows and doors yet bathed in natural light from every angle.
From the moment you step in, there’s a sense of calm and quality, with a thoughtful floorplan that balances privacy with seamless indoor-outdoor living. Set beneath a dramatic vaulted ceiling that adds flair, light and air flow, the sun-soaked, north facing living room is the heart of the home, where floor-to-ceiling sliding doors open to a generous balcony, bringing the outdoors in with effortless grace.
The central kitchen is designed for the home chef, complete with abundant cabinetry, expansive benchtops, and stainless steel appliances including a dishwasher. Beyond, a dining wing unfolds to a private balcony which invites memorable day or evenings, served by ample space for tables, chairs and friends.
Upstairs, the entire top level is a private haven with a beautifully appointed main bedroom with walk-in robe, bright ensuite, its own private balcony, and a light-filled study that provides a peaceful mezzanine style workspace. Two additional fitted bedrooms and a main bathroom with bath sit on the ground floor, creating ideal separation for families or guests.
The rear double remote garage offers rare security and ease of access, connecting directly to the home. Additional features include ducted heating and cooling, premium double glazed windows and doors, a separate laundry, mid-level powder room and under-stair storage.
All this just a stroll from Prahran Market, Windsor’s trendy restaurant, café and bar precinct, Chapel Street, Prahran station, trams, High Street and Commercial Road’s shops and cafes, while being within easy reach of Fawkner Park, Albert Park Lake and St Kilda beach.
Show More
Show Less