Barrier-free New-build Apartment with Comprehensive Services

EUR €269,700 (USD $314,244) *current conversion
Oberdachstetten, Germany

Property Highlights

  • Barrier-free design with elevator access
  • Spacious, light-filled living and dining area
  • Open kitchen with customization options
  • Modern bathroom with walk-in shower
  • 24/7 home emergency call system
  • Nearby planned supermarket and doctor’s office

Overview

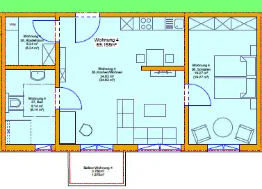
LIVING with SERVICE This new-build project in Oberdachstetten offers you the opportunity to acquire a future-proof, barrier-free new-build apartment that is specially tailored to the needs of modern living with service. The planned units combine modern living comfort with functional services that make life pleasant and safe. The apartment on offer has a living space of approx. 69 m² and impresses with its clearly structured room layout. The heart of the apartment is the spacious, light-flooded living and dining area, which creates space for relaxing hours outdoors thanks to direct access to the balcony. Large windows provide a pleasant daylight atmosphere and an open feeling of space. The kitchen is openly integrated into the living area and allows for individual design options. The bedroom offers plenty of space for restful nights and is easily accessible and usable thanks to the barrier-free design, as is the modern bathroom with a walk-in shower. High-quality materials ensure a pleasant feel and easy-care surfaces. Particular attention was paid to accessibility and suitability for everyday use: An elevator connects all floors, making the apartment completely barrier-free. The entire construction is designed with senior citizens in mind. Optional parking spaces are available. The service character of the building is a central element of this new-build project: a home emergency call system is active around the clock all year round so that you can rely on rapid assistance if needed. Professional care staff and a property management service are also available. Furthermore, a catering service is organized for the residents, which makes your everyday life noticeably easier. In addition, the development of local amenities directly on the site is already being planned - short distances determine everyday life. The overall package of this apartment impresses with its comprehensive services, contemporary, barrier-free new-build quality and quiet, yet well-connected location. Home emergency call - 365 days a year With our home emergency call, you are well looked after around the clock. Just press a button and you will receive support within a very short time - whether from neighbors, relatives, your care service or the emergency services. Flexible catering options Your physical well-being is taken care of: various meal options are available - from freshly cooked meals to prepared dishes to heat up. Complete property management You don't have to worry about repairs, maintenance and everyday issues - the local property management company is there to provide you with reliable support. Nursing staff in the immediate vicinity Thanks to the attached day care center, expert nursing staff are on site during opening hours and can be contacted by the residents of the apartments if required. Community bus for your mobility Our community bus takes you safely and comfortably to shopping trips, doctor's appointments or other appointments. Active village life Numerous senior citizens' afternoons in the village offer opportunities for meeting, entertainment and fellowship. Barrier-free access The train station in Oberdachstetten is barrier-free and only around 200 meters away from your apartment. Local amenities are also planned directly on site. There are plans to build a supermarket and a doctor's surgery in Oberdachstetten. This means that important facilities for everyday life will be available close by. Construction is scheduled to start in 2026. Secure an apartment perfectly tailored to your needs today. Have we piqued your curiosity? Arrange a consultation with us now.
Show More Show Less

Property Features

Oberdachstetten, Germany offers the following features:

Bedrooms: 1
Bathrooms: 1 Full
Living Area: 744.43sf
Property Type: Residential
Status: Active
Reference ID: 25208757

Map