Private Wooded Lot in New Lagoon Ridge Development

USD $599,000
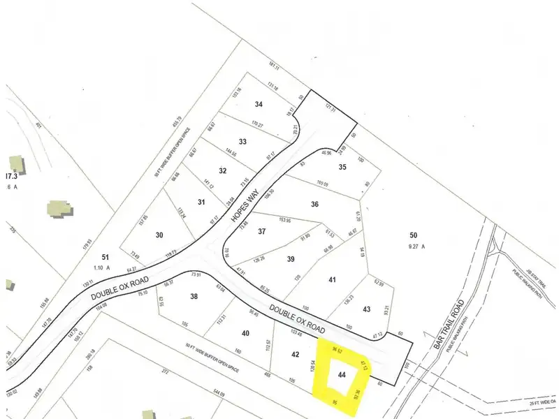
37 Double Ox Road, Oak Bluffs, Massachusetts, 02557, USA

Property Highlights

  • Wooded lot in new Lagoon Ridge development
  • Close to hiking and biking trails
  • Utilities already connected at street
  • Private, state-of-the-art septic system
  • Lot at end of quiet cul-de-sac
  • Surrounded by conservation land for privacy

Overview

This is your opportunity to get in on the ground floor of Lagoon Ridge, a stunning, new development. Several homes are already in place. This beautiful, wooded Lot is located down meandering, newly paved roads, just .4 mile from Barnes Road and the Lagoon. For the outdoor enthusiast, walk and ride the numerous hiking and biking trails that traverse the abutting conservation lands. All utility connections are at the street: electricity, Town water, and a unique, private, state-of-the art septic system that services the entire development, functioning as its own neighborhood sewerage treatment plant. Lagoon Ridge is a well-controlled and planned development with protective architectural review and strong Homeowners Association Covenants. It is overseen by a third-party property management company. This Lot is extremely private. It is the last Lot at the end of the cul-de-sac, surrounded by conservation land. You may select your own home design, subject to architectural review, which ensures that the surrounding homes will be of similar size, design and quality throughout the neighborhood. A two-bedroom home is allowed for the parcel, exclusive of bonus or flex room.
Show More Show Less

Property Features

37 Double Ox Road, Oak Bluffs, Massachusetts, 02557, USA offers the following features:

Property Type: Land
Status: Active
Reference ID: 32500247

Map