Bright and Spacious Condo with Private Patio Access

CAD $2,300 (USD $1,664) *current conversion
8136 Coventry Road, Niagara Falls, Ontario, L2H 2X6, Canada

Property Highlights

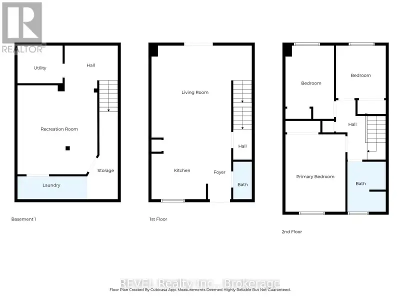
  • Bright, clean condo in south-end location
  • Open-concept kitchen and living area
  • Private patio with sliding door access
  • Finished basement ideal for office or play
  • Convenient main floor powder room
  • Well-sized bedrooms with full upstairs bathroom

Overview

Attention Tenants! Here is your chance to secure a bright, clean, and well-maintained condo unit in a highly desirable south-end location. This spacious 3-bedroom, 1.5-bathroom home offers a functional layout suitable for families, professionals, or anyone seeking comfortable living. The main floor features a convenient 2-piece powder room and an open-concept kitchen, living, and dining area with sliding doors leading to a private patio. Upstairs, you'll find three well-sized bedrooms and a full 4-piece bathroom. The finished basement provides additional living space ideal for an office, rec room, or play area. This is a wonderful opportunity to enjoy a practical and welcoming home in a sought-after neighborhood. (id:7434)
Show More Show Less

Property Features

8136 Coventry Road, Niagara Falls, Ontario, L2H 2X6, Canada offers the following features:

Bedrooms: 3
Bathrooms: 1 Full | 1 Half
Living Area: 1200
Property Type: Townhouse
Status: Active
Reference ID: X12554454

Map