Bright Home with Expansive Rooftop Terrace and Views

CAD $1,198,000 (USD $869,815) *current conversion
629 South Dyke Road, New Westminster, British Columbia, V3M 0N3, Canada

Property Highlights

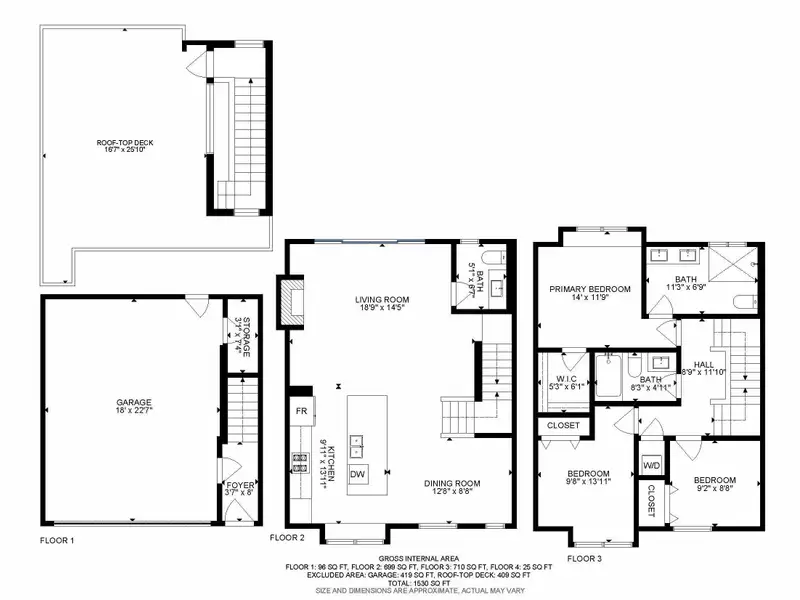
  • 400 sq. ft. rooftop terrace with views
  • Chef-inspired kitchen with stainless appliances
  • Gas range and Caesarstone countertops
  • Epoxy-coated garage floors with storage
  • Smart home automation system
  • Custom designer wallpaper throughout

Overview

Welcome to Channel, part of an exclusive collection of 16 homes by PENNYFARTHING and thoughtfully designed by Brittany Gudewill, this bright and spacious 3-bedroom, 3-bathroom home includes an expansive 400 sq. ft. rooftop terrace showcasing breathtaking river and mountain views — a true extension of your living space. Crafted with exceptional attention to detail, the home features a chef-inspired kitchen with premium stainless steel appliances, a gas range, Caesarstone countertops, custom cabinetry, and designer lighting. Additional upgrades include epoxy-coated garage floors with built-in storage, smart home automation, custom designer wallpaper, and more — all combining to create a home that’s as functional as it is stunning.
Show More Show Less

Property Features

629 South Dyke Road, New Westminster, British Columbia, V3M 0N3, Canada offers the following features:

Bedrooms: 3
Bathrooms: 2 Full | 1 Half
Living Area: 1530sf
Property Type: Townhouse
Status: Active
Reference ID: R3055852

Map