Expansive Family Home on a Tranquil 1000sqm Lot

Price Upon Request
26 Parklands Road, Mount Colah, NSW, 2079, Australia

Property Highlights

  • Near 1000sqm private, leafy block
  • Large open plan eat-in kitchen
  • Expansive deck overlooking private yard
  • Fenced backyard with level lawns
  • Massive workshop and carport parking
  • 400m to Mount Colah station and school

Overview

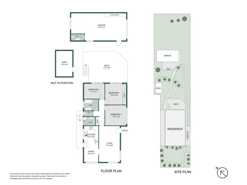
Set on a near 1000sqm parcel in a quiet leafy enclave, this much-loved single-level home presents an outstanding opportunity to reimagine or rebuild (STCA). Bordered by expansive northerly gardens that offer both privacy and tranquil district views, it provides a wonderful foundation to create a luxury family haven, extend or redesign. Peacefully positioned just 400m to the station, walking distance to Mount Colah Public School and only moments from Westfield Hornsby, it promises a lifestyle of tranquility and convenience with remarkable future potential. - Open plan family living flowing to the large open plan eat-in kitchen - Expansive entertainer's deck overlooking the park-like private yard - Spacious bedrooms, the main with direct access to the outdoor setting - Fenced backyard with sprawling level lawns and easy-care gardens - Massive workshop/garden shed, carport and copious off-street parking - Tranquil district outlook with no overlooking neighbours - Quiet tree-lined street just 400m to Mount Colah station - Stroll to Mount Colah Public School, cafés and local shops - Less than 5km to the buzz of Westfield Hornsby - Close proximity to the M1 for easy access to the North Shore and CBD - Moments to elite schools including Barker, Knox and Abbotsleigh - Options to renovate, extend or rebuild (STCA) Neighbouring property at 28 Parklands is also available for sale and properties could be purchased together to for a sub-division/redevelopment opportunity total land size for the 2 combined lots would be 2015sqm. (STCA) Disclaimer: All information contained herein is gathered from sources we believe to be reliable. However we cannot guarantee its accuracy and interested persons should rely on their own enquiries.
Show More Show Less

Property Features

26 Parklands Road, Mount Colah, NSW, 2079, Australia offers the following features:

Bedrooms: 3
Bathrooms: 1 Full
Property Type: residential
Status: Active
Reference ID: 222P616139

What's Nearby

Local businesses near 26 Parklands Road, Mount Colah, NSW, 2079, Australia:

Public Transportation: < 1 mile
School: < 1 mile
Gym: < 1 mile
Hospital: < 1 mile
Grocery/Shopping Center: 1.1 miles
Police Station: 2.6 miles

Map

The Local Vibe