Renovated Historical Brick Cottage in Desirable Midtown Location

USD $339,800
1910 Hunter Street, Mobile, Alabama, 36582, USA

Property Highlights

  • Historic brick cottage with Banner and Shield
  • Completely renovated with fresh paint inside/out
  • New windows, roof, and concrete driveway
  • Hardwood floors throughout living and dining rooms
  • Chef's kitchen with stone counters and commercial appliances
  • Fenced backyard on well-manicured lot

Overview

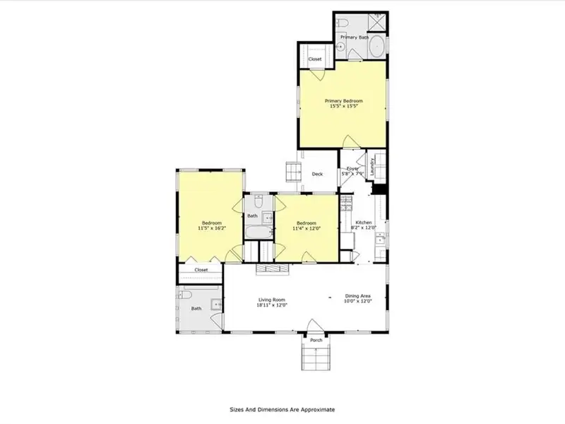
This historical home complete with a Banner and Shield from the Mobile Historic Development Commission is located in Midtown on the much-desired Hunter Avenue. This brick cottage has been well maintained and offers great curb appeal as it has been completely renovated and updated with fresh paint inside and out, new windows and roof, updates to plumbing, electrical, a/c, new concrete driveway and much more. Entering the home one can feel the openness of the floor plan in the living room and dining rooms with hardwood floors running throughout the home. A 1/2 bath flows off of the living room with exposed brick walls making it convenient for guests. The galley style Chef's kitchen includes custom subway tile work, stone countertops, and commercial style appliances. The private, spacious, primary bedroom has a walk-in closet with an ensuite bathroom including a soaking tub and stand-up shower. The other two bedrooms share a Jack and Jill bathroom. The well manicured lot has a nice sized fenced in backyard. This home is a must see and the updates are endless!Buyer responsible for verifying all measurements and relevant details.
Show More Show Less

Property Features

1910 Hunter Street, Mobile, Alabama, 36582, USA offers the following features:

Bedrooms: 3
Bathrooms: 2 Full | 1 Half
Living Area: 1561sf
Property Type: Residential
Status: Active
Reference ID: 7584277

Map