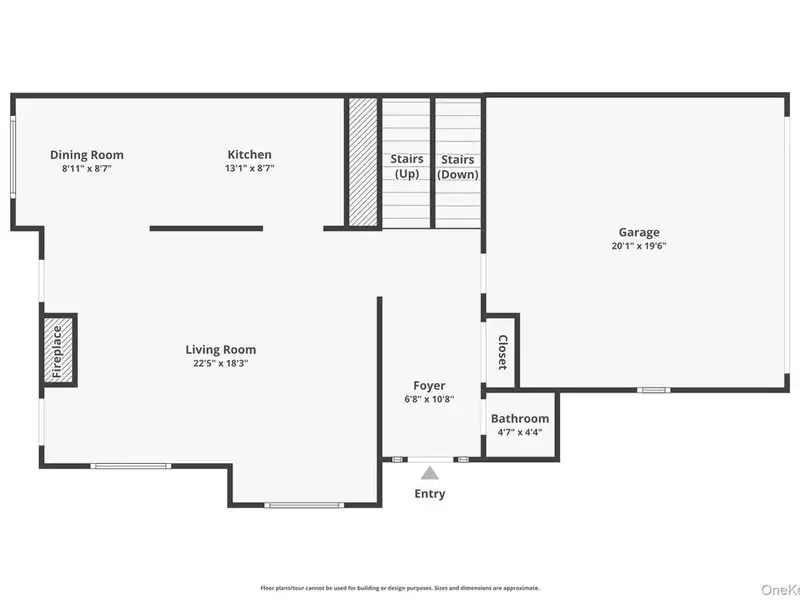
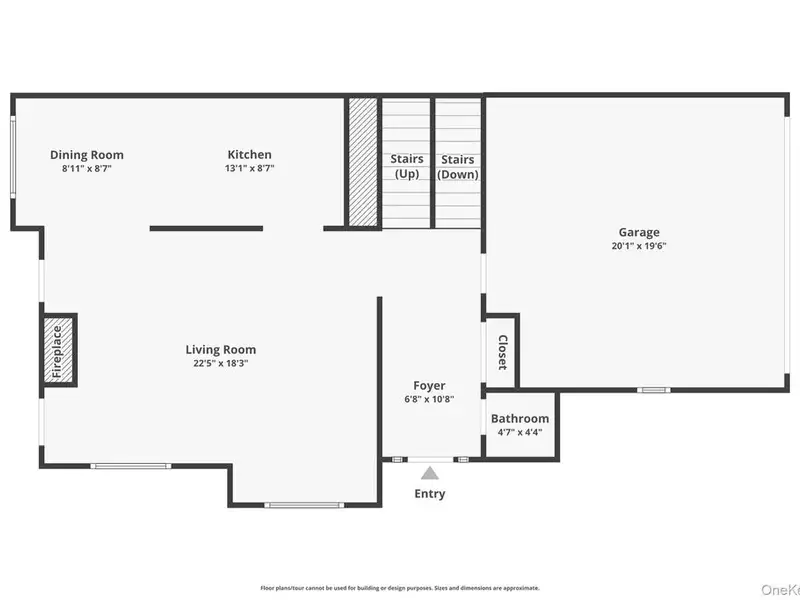
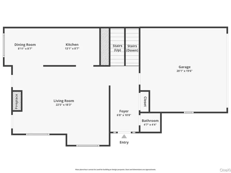
Escape the hustle and bustle and enjoy a luxury lifestyle in the Hudson Valley! 70 miles from NYC so still easily accessible! The largest end unit in the premier luxury, maintenance free gated community of Fairways of Wallkill. The original owners included every upgrade available when choosing options and now it can be yours! Starting with the privacy, lush landscaping and common area, this was an premium lot upgrade. This Beaumont model offers over 3000 sq feet and four levels of lavish living. Inside you'll immediately see the open space, columns, custom molding and rich cherry stained floors. The formal dining space with a chandelier and a living room with a wall of windows and a gas fireplace. The chefs kitchen is dressed with stainless steel appliances, cherry cabinets with showcase glass, a tiered breakfast bar, tiled backsplash and a beautiful farmers sink. Upstairs leads to the primary suite with two walk in closets, a primary bath with a two person shower, and a jetted tub. Two additional guest bedrooms, a full guest bath, and laundry complete the second floor. Now up to the third level which has a huge loft, an ideal flex space. Make it a home office, gym, or a private space for reading or yoga. There are two large (very large) closets for storage. The lower level has a full bath with a shower and is a great blank space. The owners had it as a theater room and you will see the wiring for the projector. Some additional finer points are 4 zone heat and 4 zone central air, reasonable taxes for a home this size, a two car garage with storage above, Hunter Douglas blinds, hardwood floors throughout the three floors, tons and tons of windows, a newer ac condenser and hot water heater. This gated community offers a gorgeous club house, with a gym, an outdoor pool and spa and the convenience of West Hills Golf Club right next door. Located 1/4 mile from Garnett Medical Center. The shopping mecca of Route 211, Route 17, and I84 are less than 5 miles. Visit nearby Legoland, shop at Woodbury Common, see a concert at Bethel Woods, or have a night out at Resorts International Casino. You truly can have it all here a Fairways of Wallkill! Schedule your tour now!
Show More
Show Less