Attractive Detached Family Home with Landscaped Garden

EUR €465,000 (USD $546,776) *current conversion
Menden (Sauerland), Germany

Property Highlights

  • Quiet central location in Menden-Lendringsen
  • High-quality Weber prefabricated house
  • Underfloor heating with room thermostats
  • Modern Austroflamm fireplace in living area
  • Landscaped garden with two terraces
  • Two parking spaces on property

Overview

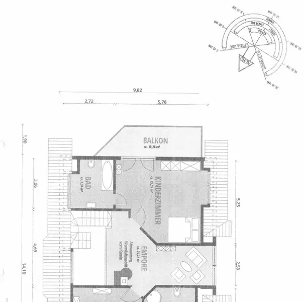
In a sought-after residential area of Menden-Lendringsen, in a quiet yet central location, you will find this attractive, detached family home on a 410 m² plot. The surrounding area impresses with its well-kept neighborhood, good connections and family-friendly infrastructure. The property is a high-quality prefabricated house by Weber, which impresses with its well thought-out room layout and comfortable furnishings. The living space is spread over two floors and offers plenty of room for couples or families. The house is fully equipped with underfloor heating, which can be controlled via individual thermostats in each room - for maximum living comfort at any time of year. In the spacious living area, a modern fireplace from Austroflamm creates a cozy atmosphere. The lovingly landscaped garden boasts two terraces: - a main terrace of approx. 20 m² with an east-south-west orientation, ideal for hours of sunshine from morning to evening, and a second, smaller terrace of approx. 9 m², which offers further opportunities to retreat into the greenery. Garden paths made of granite cobblestones and a covered seating area right next to the house underline the stylish outdoor concept. Two parking spaces are available on the property. On the upper floor, the house boasts a spacious gallery that can be used in a variety of ways - e.g. as a work, reading or play area. Two bedrooms, each with an adjoining daylight bathroom, offer privacy and comfort for all residents. The windows, balcony and patio doors are made of high-quality Meranti wood, as is the solid front door. An alarm system in combination with two surveillance cameras ensures a good sense of security. A well-kept, detached family home in a sought-after location - ideal for anyone who values quality, comfort and a beautiful living environment. Arrange a viewing appointment and be inspired on site! VON POLL IMMOBILIEN Iserlohn VON POLL IMMOBILIEN Lüdenscheid Your real estate specialists in the Märkischer Kreis and in Schwerte #vonpollimmobilieniserlohn #vonpollimmobilienlüdenscheid #real estate agents #Iserlohn #Lüdenscheid #Schwerte #Hemer #Menden #Schalksmühle #Altena #Nachrodt #Werdohl #Neuenrade #Plettenberg #Herscheid #Kierspe #Halver #Balve #buying real estate #selling real estate #retiring real estate
Show More Show Less

Property Features

Menden (Sauerland), Germany offers the following features:

Bedrooms: 2
Bathrooms: 2 Full
Living Area: 2325sf
Property Type: Residential
Status: Active
Reference ID: 25351034

Map