Energy-efficient Home in Oregon's First Net Zero Community

USD $210,000
1741 Fallen Leaf Drive, Medford, Oregon, 97501, USA

Property Highlights

  • Net Zero Energy Community
  • Affordable Housing Development
  • Hi-tech, Fire-resistant Construction
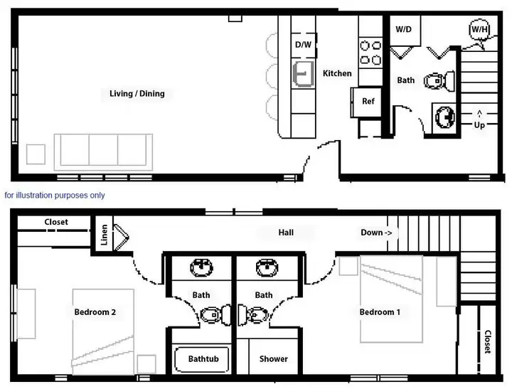
  • Open, Efficient Floorplan
  • Vaulted Ceiling with Natural Light
  • Association Fee Covers Utilities and Maintenance

Overview

Breath of Life Medford is Oregon's first Net Zero Energy Community with 142 mixed-use units and affordable housing development. The Villa Floor Plan is a 1120sf 2 bedroom 2 1/2 bath home featuring hi-tech building materials and energy efficient construction where true fire-resistant construction meets affordable homeownership security. The Villa features an open, efficient floorplan designed for comfortable living and peace of mind. Inside, you'll find modern finishes, ample natural light, and vaulted ceiling where our tech panels offer superb acoustic ratings for an open and bright feeling while still offering privacy and energy efficiency. Thoughtfully designed living areas flow seamlessly for both everyday living and entertainment. The Monthly Association fee includes Power, Water/Sewer, High Speed Internet, Garbage, Exterior Landscape and Grounds upkeep.
Show More Show Less

Property Features

1741 Fallen Leaf Drive, Medford, Oregon, 97501, USA offers the following features:

Bedrooms: 2
Bathrooms: 2 Full | 1 Half
Living Area: 1120sf
Property Type: Residential
Status: Active
Reference ID: 220206974

Map