Net Zero Energy Home with Modern Finishes in Medford

USD $210,000
1721 Fallen Leaf Drive, Medford, Oregon, 97501, USA

Property Highlights

  • Net Zero Energy Community
  • Affordable mixed-use housing
  • Fire-resistant, energy-efficient construction
  • Open floorplan with vaulted ceiling
  • Modern finishes with natural light
  • Power and utilities included in fee

Overview

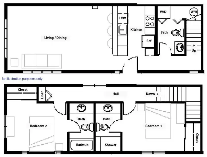
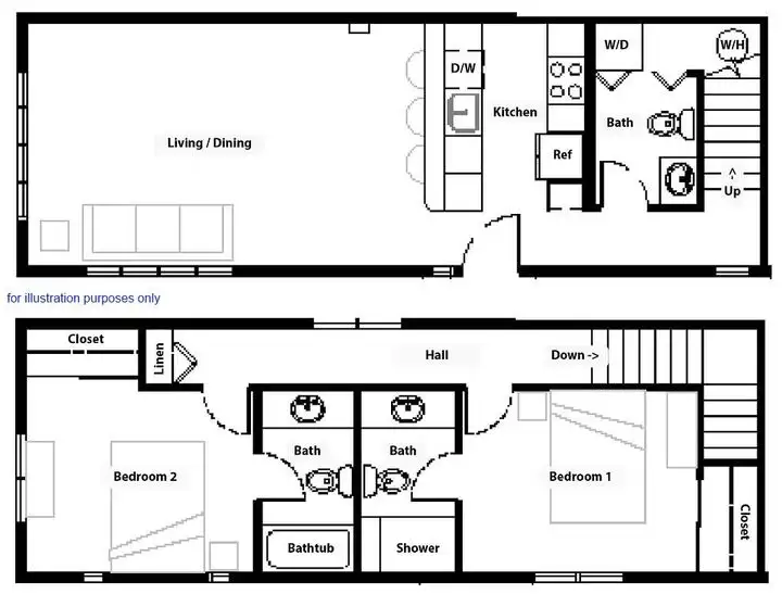
Breath of Life Medford is Oregon's first Net Zero Energy Community with 142 mixed-use units and affordable housing development. The Villa Floor Plan is a 1120sf 2 bedroom 2 1/2 bath home featuring hi-tech building materials and energy efficient construction where true fire-resistant construction meets affordable homeownership security. The Villa features an open, efficient floorplan designed for comfortable living and peace of mind. Inside, you'll find modern finishes, ample natural light, and vaulted ceiling where our tech panels offer superb acoustic ratings for an open and bright feeling while still offering privacy and energy efficiency. Thoughtfully designed living areas flow seamlessly for both everyday living and entertainment. The Monthly Association fee includes Power, Water/Sewer, High Speed Internet, Garbage, Exterior Landscape and Grounds upkeep.
Show More Show Less

Property Features

1721 Fallen Leaf Drive, Medford, Oregon, 97501, USA offers the following features:

Bedrooms: 2
Bathrooms: 2 Full | 1 Half
Living Area: 1120sf
Property Type: Residential
Status: Active
Reference ID: 220206971

What's Nearby

Local businesses near 1721 Fallen Leaf Drive, Medford, Oregon, 97501, USA:

Public Transportation: < 1 mile
School: < 1 mile
Grocery/Shopping Center: 1 mile
Gym: 1.3 miles
Police Station: 1.5 miles
Hospital: 1.7 miles

Map