Modern Townhouse in the Heart of L'escala's Old Town

EUR €625,000 (USD $730,978) *current conversion
L'Escala, CT, 17130, Spain

Property Highlights

  • Close to L'Escala beach within 300m
  • Modern open-plan living and dining area
  • Fully equipped kitchen for convenience
  • Spacious patio for outdoor dining
  • Private garage with parking space
  • Large top-floor terrace with outdoor space

Overview

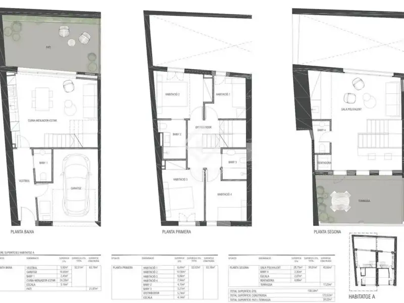
Discover this cosy, modern townhouse set in the heart of L'Escala's charming old town. This newly developed property is just a five-minute stroll (300m) from the town’s beach, surrounded by local restaurants and essential services, offering the perfect blend of convenience and coastal living. The townhouse has been thoughtfully designed with comfort in mind, and spans three floors. On the ground floor, you'll find a bright open-plan living and dining area, a fully-equipped kitchen and direct access to a spacious patio—ideal for outdoor dining and relaxation. This floor also includes a private garage with space for one car and a convenient guest toilet. The first floor is home to a generous area featuring four bedrooms. The main bedroom boasts an en-suite bathroom, while the other three bedrooms share a strategically laid out bathroom. The top floor offers a versatile multifunctional room, perfect for use as a TV room, office or additional bedroom. This floor also includes a large terrace, providing a wonderful outdoor space and a practical second guest toilet. Designed for year-round comfort, this modern townhouse includes all the facilities needed for an enchanting living experience through every season. Private parking and a prime location make this property an exceptional opportunity in L'Escala.
Show More Show Less

Property Features

L'Escala, CT, 17130, Spain offers the following features:

Bedrooms: 5
Bathrooms: 4 Full
Living Area: 1851sf
Property Type: Single Family
Status: Active
Reference ID: CBR52612

What's Nearby

Local businesses near L'Escala, CT, 17130, Spain:

Grocery/Shopping Center: < 1 mile
Gym: < 1 mile
Public Transportation: < 1 mile
Police Station: < 1 mile
School: < 1 mile
Hospital: < 1 mile

Map