15+ Acres of Vacant Land in Lancaster Area

USD $65,000
5 East Avenue D, Lancaster, California, 93535, USA

Property Highlights

  • 15+ acres of vacant rural land
  • Proposed RR-2.5 zoning allows subdivision
  • Flat to gently sloped desert terrain
  • Ideal for rural residential or agricultural use
  • Located near 5th Street West and Avenue D
  • Peaceful area with sweeping views

Overview

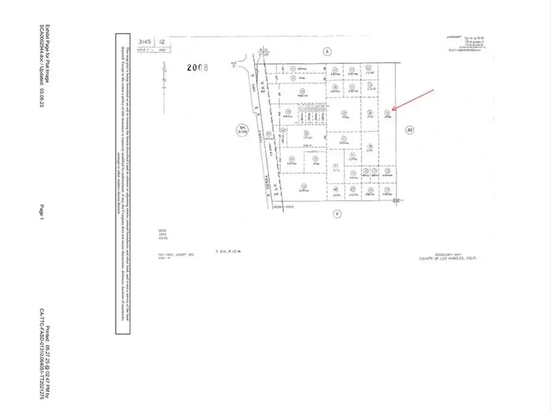
* 15+ Acres Zoned Residential / Rural - Redman/Lancaster Area - Rural Development Opportunity * Explore a rare opportunity to own over 15 acres of rural land in the city of Lancaster. Anchored by APN 3145-012-014, this parcel is "proposed" to be zoned RR-2.5 (Rural Residential, 2.5-acre minimum lot size), making it ideal for a custom homestead, off-grid living, or long-term investment. Located near 5th Street West and Avenue D, the area offers open, gently rolling desert terrain, sweeping views, and a peaceful atmosphere away from the noise of city life. Property Highlights:15+ acres of vacant rural land. Current Zoning: RL20 and Zoning Proposed: RR-2.5 - potential to subdivide into multiple 2.5-acre lots (buyer to verify). Flat to gently sloped terrain with native desert vegetation. Ideal for rural residential, equestrian, or agricultural uses. Relatively undeveloped area - no current utility connections. Water would require a well, and sewer would require a septic system.
Buyer must bring in all infrastructure (power, road improvements, etc.). Important Development Note: This parcel is currently located in unincorporated Los Angeles County but is proposed for annexation into the City of Lancaster. For information on development standards, future zoning, and annexation status, please contact the City of Lancaster Senior Planner of Community Development. LEGAL DESCRIPTION: For APN/Parcel ID(s):
3145-012-014
THE LAND REFERRED TO HEREIN BELOW IS SITUATED IN THE UNINCORPORATED AREA IN COUNTY OF LOS
ANGELES, STATE OF CALIFORNIA AND IS DESCRIBED AS FOLLOWS:
THE EAST HALF OF THE EAST HALF OF THE EAST HALF OF THE NORTHWEST QUARTER OF SECTION 22,
TOWNSHIP 8 NORTH, RANGE 12 WEST, SAN BERNARDINO BASE AND MERIDIAN, IN THE COUNTY OF LOS
ANGELES, STATE OF CALIFORNIA, ACCORDING TO THE OFFICIAL PLAT OF SAID LAND FILED IN THE DISTRICT
LAND OFFICE JUNE 19, 1856.
EXCEPTING THEREFROM THAT PORTION INCLUDED WITHIN THE SOUTH HALF OF THE SOUTHWEST
QUARTER OF THE NORTHWEST QUARTER OF SAID SECTION 22.
Show More Show Less

Property Features

5 East Avenue D, Lancaster, California, 93535, USA offers the following features:

Property Type: Land
Status: Active
Reference ID: OC25131186

Map