Historic Charm with Modern Upgrades in Park City Village

USD $315,000
2724 East Magnolia Avenue, Knoxville, Tennessee, 37914, USA

Property Highlights

  • Fully renovated historic building
  • All-new LG appliances included
  • Private shared garden and patio
  • Deeded parking with EV charging access
  • Gated community with keyless entry
  • Versatile layouts for various lifestyles

Overview

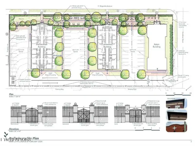
Park City Village - Historic Charm, Modern Living PRE SALE Welcome to Park City Village, a beautifully reimagined condo development located just a short drive from downtown Knoxville. Set in a thoughtfully restored historic building, these condos blend vintage character with top-tier modern upgrades perfect for anyone looking to buy a piece of downtown. Park City Village Condo Approx. sizes per appraiser is an estimate only and is subject to change. Buyer to verify size, taxes (TBD) and HOA fees which are subject to change. *Because this is an active construction site, all tours must be scheduled in advance and all visitors must be escorted through the development by the developer's representative. Photos will be updated soon. This project will be completed in 3 phases, allowing for thoughtful execution and the opportunity to secure a unit early in this exciting new community. Call agent for info and showings. Historic Building, Fully Renovated A perfect fusion of classic architecture and modern comfort. Property Features: All-New LG Appliances (Value 10K) Each unit comes fully equipped with brand-new LG appliances, offering high performance and stylish design. Private Outdoor Spaces Enjoy the peaceful shared garden and patio ideal for relaxing, entertaining, or working outdoors. Deeded Parking (estimate value 25K) Each condo includes dedicated parking and access to EV charging stations(buyer to pay for installation) Gated, Secure Community Live with confidence in this fully gated community featuring keyless entry and a secure entrance. Versatile Layouts for Any Lifestyle Ideal for working from home, downsizing, investing, or as a second residence.
Show More Show Less

Property Features

2724 East Magnolia Avenue, Knoxville, Tennessee, 37914, USA offers the following features:

Bedrooms: 2
Bathrooms: 1 Full
Living Area: 738
Property Type: Condo
Status: Active
Reference ID: 1307040

Map