Custom Home Plans on Private .97 Acre Lot in Bridle Trails

USD $3,475,000
6140 130th Avenue Northeast, Kirkland, Washington, 98033, USA

Property Highlights

  • Large .97 acre lot with mature landscaping
  • Custom luxury home plans by noted architect
  • 5-car garage plus ADU planned
  • New carpet and interior paint in 2022
  • Open floor plan with large windows
  • Close to Kirkland waterfront and tech hubs

Overview

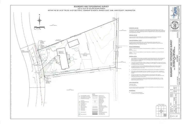
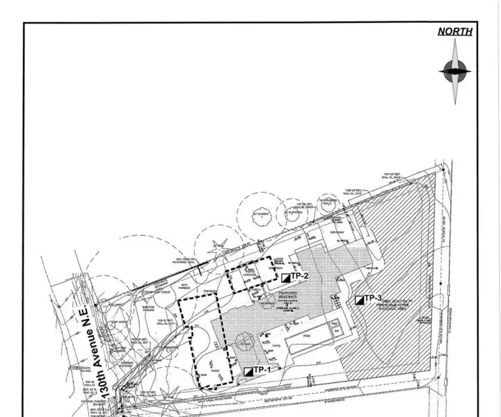
Amazing Opportunity in Bridle Trails! Live-in, Remodel or Build your Dream Home. Custom home plans for luxury 6,239 SF two-story home with ADU+5-car garage designed by Gerald Redding, Architect (in for permits). One of the last original properties in Silver Spurs surrounded by luxury estate homes. Sun drenched .97 acre lot has a peaceful & private setting, beautifully framed by mature landscaping. Existing home offers new carpet & interior paint (2022) & open floor plan, generous room sizes & large windows for light-filled interior. Close to vibrant Kirkland waterfront & easy access to Tech co's, Spring District, restaurants & retail. Excellent Lk Wash. schools. Existing Home is on septic. Survey, Sewer Easement & Geotech reports available.
Show More Show Less

Property Features

6140 130th Avenue Northeast, Kirkland, Washington, 98033, USA offers the following features:

Bedrooms: 4
Bathrooms: 1 Full | 2 Half
Living Area: 2500sf
Property Type: Residential
Status: Pending
Reference ID: 2412392

Map