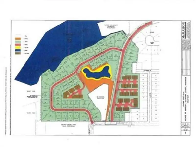
Waterfront Property with Scenic Fox River Views in Kimberly

USD $89,900
450 Rivers Edge Drive #20, Kimberly, Wisconsin, 54136, USA

Property Highlights

  • Waterfront subdivision location
  • Beautiful Fox River views
  • Prime Kimberly location

Overview

Beautiful views of the Fox River at this prime Kimberly location, part of Kimberly's only waterfront subdivision. Addendum 1 to Offer to Purchase MUST be attached to offer.
Show More Show Less

Property Features

450 Rivers Edge Drive #20, Kimberly, Wisconsin, 54136, USA offers the following features:

Property Type: Land
Status: Active
Reference ID: 50288167

Map