Idyllic Resort-style Estate in Desirable Seacliff Location

USD $3,675,000
18976 Rockinghorse Lane, Huntington Beach, California, 92648, USA

Property Highlights

  • Massive 13,225 sq ft private resort lot
  • Five-car garage plus driveway parking
  • Remodeled kitchen with quartz counters
  • Pebble Tec salt system pool and spa
  • High volume ceilings with natural light
  • Primary suite with fireplace and balcony

Overview

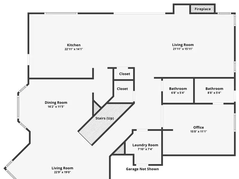
Exceptional one of a kind Edwards Hill Estate Property. This Ascot series Hamptons home boasts a massive 13,225 square foot lot creating your own private resort compound. The five car garage and driveway that will accommodate and additional five or more vehicles adds to the uniqueness of this home. Beautifully designed and upgraded throughout with rich wood flooring flowing throughout the living space. Crisp contemporary kitchen was just remodeled and features sleek quartz counters and a large center island. Lux white cabinetry with designer selected hardware. Built in Sub Zero refrigerator and high end Monogram series appliances. The family room is open to the kitchen and looks out through new four panel bi folding doors to your Tropical Paradise. The rear grounds of the home make you feel like you are at a five star resort. The Pebble Tec salt system pool and spa was just completely redone. Fabulous Barbeque area with multiple accoutrements and thoughtfully designed seating area. The main living space of the home offers high volume ceilings and attractive windows that let in tons of natural sunlight. There is a conveniently located downstairs bedroom with its own En suite bath. Ascend up the grand staircase to your primary suite sanctuary. Palatial in scale with a lovely sitting area, fireplace and private balcony. The primary bath is spa inspired and is complete with soaking tub and separate shower. A sizable walk in closet with multiple built ins complete the space. There are three additional generously size bedrooms upstairs with two of them offering En suite baths. This home is located in the highly desirable Seacliff area that offers access to the Equestrian Center and horse trails. The private Huntington Club Golf course is just around the corner affording multiple opportunities for sports and recreation. Come live the California Coastal Lifestyle at its finest!
Show More Show Less

Property Features

18976 Rockinghorse Lane, Huntington Beach, California, 92648, USA offers the following features:

Bedrooms: 5
Bathrooms: 4 Full | 1 Half
Living Area: 3575sf
Property Type: Residential
Status: Active
Reference ID: OC25111670

What's Nearby

Local businesses near 18976 Rockinghorse Lane, Huntington Beach, California, 92648, USA:

School: < 1 mile
Gym: < 1 mile
Grocery/Shopping Center: < 1 mile
Public Transportation: < 1 mile
Hospital: < 1 mile
Police Station: < 1 mile

Map