Exceptional Homewood Property with Private Tennis Court

USD $395,000
3068 Hickory Road, Homewood, Illinois, 60430, USA

Property Highlights

  • Almost one-acre lot with private tennis court
  • Vaulted ceilings in living and dining rooms
  • Great room with wet bar and full bath
  • Cozy family room with fireplace
  • Two-car detached garage
  • Unfinished sub-basement for storage or expansion

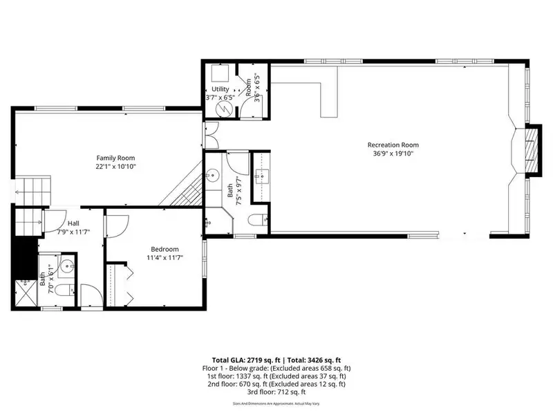
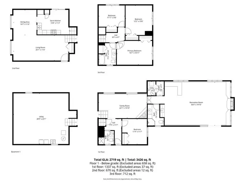
Overview

Welcome to 3068 Hickory Road - a one-of-a-kind Homewood property offering space, character, and a backyard you won't find anywhere else. Sitting on almost one acre lot with its own private tennis court, this 4 bedroom, 2.5 bathroom tri-level home delivers the kind of indoor and outdoor living that is truly unmatched. Step inside to a bright and inviting main floor where the living room and dining room feature vaulted ceilings that instantly elevate the space. The kitchen is centrally located, making everyday living and entertaining effortless. Head upstairs to find three comfortable bedrooms and a full bathroom. The lower level offers even more room to spread out with a cozy family room with a fireplace, an additional bedroom, and a convenient half bathroom. But the standout space of this home is the incredible great room addition. With soaring vaulted ceilings, a wet bar, a full bathroom, and a wall of windows that fill the room with natural light, this is the gathering place you've always dreamed of. Whether hosting holidays, celebrating milestones, or simply spreading out as a family, this room truly does it all. There's also an unfinished sub-basement for storage or future expansion, plus a two-car detached garage. Outside, the backyard feels like your own private retreat. From summer tennis matches to neighborhood gatherings, this expansive outdoor space gives you endless possibilities. Homes with this much square footage, character, and yard space in Homewood simply don't come around often - this is your chance to make it yours.
Show More Show Less

Property Features

3068 Hickory Road, Homewood, Illinois, 60430, USA offers the following features:

Bedrooms: 4
Bathrooms: 2 Full | 1 Half
Living Area: 2768sf
Property Type: Residential
Status: Active
Reference ID: 12483014

Map