Renovated Waterfront Home with Open-water Views in Gun Barrel City

USD $1,199,000
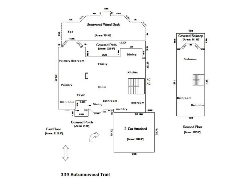
339 Autumn Wood Trail, Gun Barrel City, Texas, 75156, USA

Property Highlights

  • Waterfront home with open-water views
  • Oversized 2-car garage
  • Open kitchen with island and walk-in pantry
  • Primary bedroom with deck access and lake views
  • Covered patio with hot tub and fire pit
  • Boathouse with party deck and boat cradle

Overview

Stunningly renovated waterfront 2,920 sq ft home in Gun Barrel City on Cedar Creek Lake offering 4 bedrooms, 3 bathrooms, an oversized 2-car garage and open-water views. The spacious living room features large picture windows and a striking Austin-stone fireplace flowing into two dining spacesa dedicated dining room (perfect place for combination dining game table) and a breakfast area. Connected to both dining areas, the open kitchen includes newer black stainless appliances with a convection oven and flat cooktop, a walk-in pantry, island, and bar seating for. Tall ceilings, LVP flooring, decorative lighting, and a clean designer feel extend throughout. The waterside primary bedroom on the main floor features deck access, picture windows capturing open-water views, and electric blinds. The ensuite bath features a dual-sink vanity, walk-in shower with glass surround, soaking tub, and two walk-in closets. A second downstairs bedroom with full bath great for guests or full time living. Upstairs, an extra-large waterside bedroom includes a private waterside balcony, while another bedroom offers built-in bunks (two queens down, two twins up) and a walk-in closet. A full bath with a tub-shower combo serves both rooms. Outdoor living shines with a covered patio and extended deck with multiple seating areas, a hot tub, and a wrought-iron fenced yard that extends beyond the fence and includes a flagstone fire pit area. The boathouse features composite decking, modern railing, a party deck, lighting, and a cradle for a wake boat. Lake stairs allow easy water access, and a lake-pump sprinkler system. A large concrete driveway provides ample parking plus a two-car garage. Located in a desirable site-built community, the neighborhood includes a gated park with a boat launch, pavilion, and fishing pier, with easy access to Gun Barrel City shopping and dining. Short term rentals allowed with permit from Gun Barrel City. Furnishings and Watercraft available separately.
Show More Show Less

Property Features

339 Autumn Wood Trail, Gun Barrel City, Texas, 75156, USA offers the following features:

Bedrooms: 4
Bathrooms: 3 Full
Living Area: 2920sf
Property Type: Residential
Status: Active
Reference ID: 21117818

What's Nearby

Local businesses near 339 Autumn Wood Trail, Gun Barrel City, Texas, 75156, USA:

School: < 1 mile
Public Transportation: 1.1 miles
Grocery/Shopping Center: 1.7 miles
Gym: 1.8 miles
Hospital: 2.5 miles
Police Station: 2.6 miles

Map