Charming 1760 Farmhouse with Modern Upgrades and Garden

EUR €389,000 (USD $452,610) *current conversion
Grafschaft, Germany

Property Highlights

  • Historical farmhouse charm
  • Spacious modern kitchen
  • Landscaped garden with outdoor space
  • Underfloor heating on main floor
  • Photovoltaic solar panels installed
  • Pellet fireplace for cozy warmth

Overview

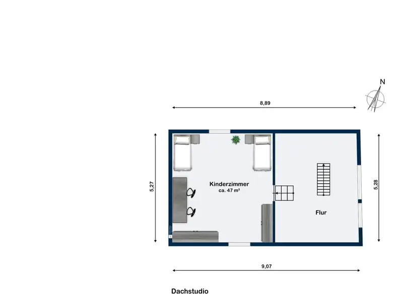
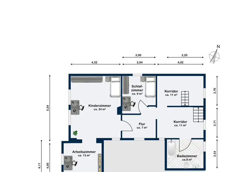
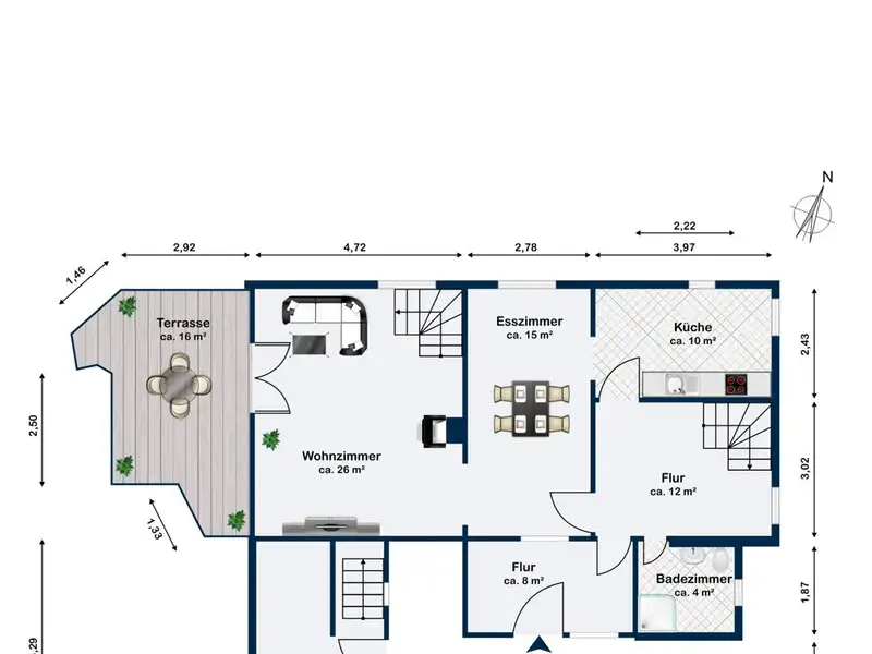
This well-kept detached house from 1760 offers a unique combination of the historical charm of a former farmhouse and modern facilities. On a generous living space of around 199 m² and a plot of around 516 m², there are seven rooms that offer a variety of uses and promise comfort for the whole family. The first floor of the house impresses with its bright and friendly living areas. The kitchen, which is almost as good as new, offers plenty of space for culinary creations and has a functional design. The adjoining dining area invites you to enjoy meals together and sociable evenings. From the living room you can reach the beautifully landscaped garden, which becomes an outdoor living room, especially in the summer months, and extends the generous space in the house considerably. Underfloor heating on this level ensures a cozy living atmosphere in the cooler months. The upper floor houses the bedrooms; the rooms, some with exposed timber framing, are bright, friendly and offer a wonderful view of the garden. A guest WC can be converted into a further bathroom. A particular highlight is the photovoltaic system, which was installed on the south-facing roof in 2017 and extended to the east/west-facing roof in 2022. This system delivers around 12,500 kW per year, ensuring a sustainable energy supply. The energy concept is complemented by a solar thermal system, which was installed in 2021, and a pellet fireplace from 2020, which provides cozy warmth. The property has been modernized throughout, in particular the entire infrastructure such as water and electricity pipes, which were renewed in 2012. Central heating in conjunction with a pellet heating system was installed to ensure efficient and environmentally friendly heating. A heating rod to support the heating system was added in 2024. This detached house impresses with its solid building fabric, its lovingly maintained condition and the continuous modernizations that make it a comfortable and energy-efficient home. A viewing is well worthwhile to see the benefits of this unique property for yourself.
Show More Show Less

Property Features

Grafschaft, Germany offers the following features:

Bedrooms: 3
Bathrooms: 1 Full
Living Area: 2142.02sf
Property Type: Residential
Status: Active
Reference ID: 25315012

Map