Large Building Plot in Cala Galdana, Menorca

EUR €5,000,000 (USD $5,825,808) *current conversion
Ferreries, IB, 07750, Spain

Property Highlights

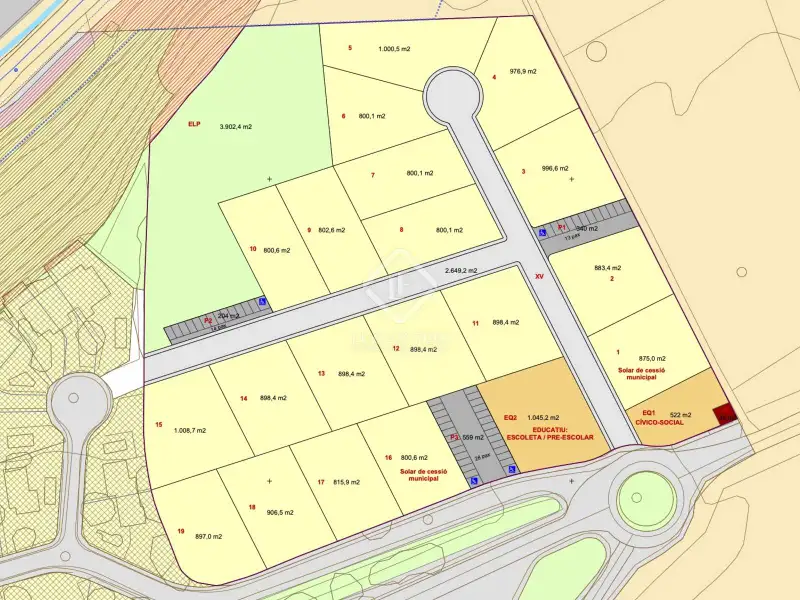
  • Large 26,016 m² building plot
  • Located in popular Cala Galdana area
  • 19 individual plots ranging 800-1,008 m²
  • Average buildable area 265 m² per plot
  • Total buildable area up to 5,038 m²
  • Scarce building plots in Menorca market

Overview

Great investment opportunity for a building plot of 26,016 m² located in Cala Galdana, belonging to the municipality of Ferreries. The plot offers 19 plots with an area of between 800 m² and 1,008 m², where the average buildable area on each plot is 265 m². In total, a maximum net buildable area of 5,038 m² would be reached. A unique opportunity aimed at professionals due to the scarcity of building plots in Menorca, for those who wish to invest in the construction of an urbanization in one of the most popular and tourist areas of the island. Contact us for more information or to arrange a visit.
Show More Show Less

Property Features

Ferreries, IB, 07750, Spain offers the following features:

Living Area: 288289sf
Property Type: Land
Status: Active
Reference ID: MEN34614

Map