Charming Historic Cabin on 4 Acres with Private Pond

USD $399,500
10296 Indiana 13, Elwood, Indiana, 46036, USA

Property Highlights

  • 4-acre lot with private pond and island
  • Original historic cabin with large kitchen
  • 40x20 pool with privacy fence and pool deck
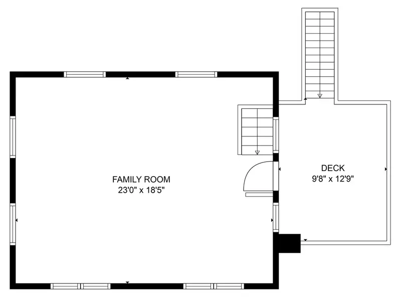
  • Pool rec room with bar and outdoor service window
  • Multiple outdoor living and dining spaces
  • 24x20 outbuilding with loft and chicken coop

Overview

Enjoy your own slice of Heaven ideally situated on a 4 acre Lot with your own private Pond with an Island access by a walking Bridge. The original Cabin dates back to the early roots of Elwood history, where it was once a Retreat destination for the Town's Doctor. Fast forward to today and you still have a perfect spot for an easy get away spot for family and friends. Entertain with multiple Outdoor Living spaces. The 40 X 20 Pool with privacy Fence includes a large Pool Deck and 1/2 Bathroom. The Pool Rec Room measures 23 X 17, offering a Bar & Service Window to the Outdoor Living & Dining areas. Multiple Outdoor Living spaces to sit and enjoy this peaceful setting. You will find ample storage area in the 24 X 20 Outbuilding with a 24 X 08 Loft & Chicken Coop. The Upper Level Loft area of the Cabin would make a great spot for a Dorm room type area for the children, or perhaps as a Home Office. The 2nd Bedroom can offer flexibility in its use as well. Additions to the Cabin over the years include a large Kitchen and Hearth/Dining Room space. The large Primary Bedroom includes a 12 X 10 Sitting Room and private Bathroom. Feel the history of the Cabin and the Land sipping on Lemonade or fresh Tea while relaxing on the original charming Front Porch. Open up the Artesian Wells for naturally filtered ground water. Cross over the Bridge onto your own private Island and camp for the night, or spend the day fishing. Properties like this simply do not come along very often.
Show More Show Less

Property Features

10296 Indiana 13, Elwood, Indiana, 46036, USA offers the following features:

Bedrooms: 2
Bathrooms: 2 Full | 1 Half
Living Area: 2526sf
Property Type: Residential
Status: Pending
Reference ID: 22019448

What's Nearby

Local businesses near 10296 Indiana 13, Elwood, Indiana, 46036, USA:

Gym: < 1 mile
Grocery/Shopping Center: < 1 mile
Police Station: 1.5 miles
Hospital: 1.6 miles
School: 1.7 miles
Public Transportation: 13.4 miles

Map

The Local Vibe