Exceptional Country Retreat with Equine Facilities and Guest Cottage

Price Upon Request
9 Namba Road, Duffys Forest, NSW, 2084, Australia

Property Highlights

  • Five-acre private country retreat
  • Sunlit saltwater pool with stone terraces
  • Separate fully self-contained guest cottage
  • Custom island kitchen with imported appliances
  • Full equine facilities with dressage arena
  • 20kw solar power and large water tanks

Overview

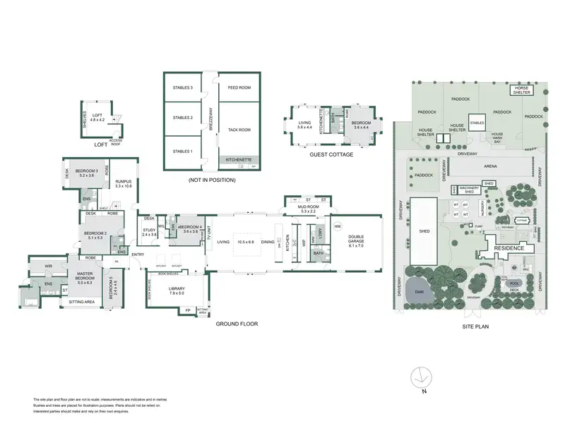
Encompassing five acres, this property is clearly one of the most captivating country retreats on the Northern Beaches; the residence is exquisite - the layout, dimension and quality of this home and its grounds are of rare calibre. Designed by Pettit + Sevitt in the late 60s, it's been brilliantly updated and expanded to embrace the way we live now; sited with a perfect north/south aspect, its low-slung profile and the clean geometry of the architecture merge entirely with sun-dappled gardens, vast stone terraces and saltwater pool – it's an extraordinary entertainer. The free-flowing, single-level design reveals a refined collection of living zones including a second sunken lounge/library, an expansive family room joined by a versatile loft space, and either one or two home offices; each of the double bedrooms enjoys a private ensuite. Weekend visitors or extended family are easily accommodated with a lovely guest cottage just behind the main residence. The private drive winds through the property and its bucolic gardens to a series of lush green paddocks, vintage hay shed, stabling for four horses and a dressage arena. Additional highlights include a large machinery shed with four bays, workshop shed, 80,000L storm water retention tank, dam, 20kw solar power and three gated entrances with full video security systems; this is an impeccably maintained acreage. An extraordinary estate by every measure, with equine facilities to match, this is the ultimate in resort-style living in an exceptionally private setting – just moments from local shops, private and public schools plus a fabulous choice of iconic beaches. - Unique and exceptionally private where lifestyle reigns supreme - Tucked beautifully into the site, creating a sense of unity and flow - Stunning 5-acre property; residence boasts a perfect north aspect - Contemporary design highlights integrated, glass-wrapped interiors - Sunlit saltwater pool, expansive stone terracing and dining cabana - Open plan living plus sunken lounge/library and generous family room - Purpose-built home office, all bedrooms with ensuites and built-ins - Lavish master retreat with walk-in robe, dressing room, luxe ensuite - Custom-designed island kitchen; imported appliances and vast pantry - Separate guest cottage is fully self-contained; borders the gardens - Wisteria-covered walkways, established fruit trees and vege gardens - Spotted gum + tumbled travertine floors, ducted climate control - Full equine facilities: five paddocks, four stables + dressage arena - Hay shed, 20kw solar, commercial shed with four double-height bays - 80,000L water tanks fed by dam; also connected to town water supply - Automatically irrigated property and gated security on each entrance
Show More Show Less

Property Features

9 Namba Road, Duffys Forest, NSW, 2084, Australia offers the following features:

Bedrooms: 7
Bathrooms: 4 Full
Property Type: residential
Status: Active
Reference ID: 62P35213

What's Nearby

Local businesses near 9 Namba Road, Duffys Forest, NSW, 2084, Australia:

School: < 1 mile
Public Transportation: < 1 mile
Gym: 2.2 miles
Hospital: 2.2 miles
Grocery/Shopping Center: 2.3 miles
Police Station: 5.3 miles

Map

The Local Vibe