New Construction Home with Open-concept Design in Lake Tansi

USD $420,000
3019 Pomo Circle, Crossville, Tennessee, 38572, USA

Property Highlights

  • Under construction on double lot
  • Spacious 2-car garage with 16' door
  • Large covered rear porch for entertaining
  • Open concept with cathedral ceilings
  • Kitchen with quartz countertops and island
  • Appliance allowance for customization

Overview

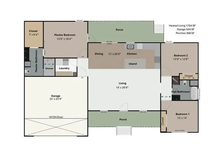
New Construction in Lake Tansi! *Seller offering $5,000 in buyer concessions.* Introducing your future home in the highly sought-after Lake Tansi community of Crossville, TN! This beautifully finished 3-bedroom, 2-bathroom home sits on a double lot and is fully completed and move-in ready. With 1,704 sqft of heated and cooled living space, this thoughtfully designed home will feature a spacious 544 sqft 2-car garage with a 16' overhead door and a 368 sqft covered porch, ideal for relaxing or entertaining. The open-concept layout boasts a central living area with cathedral ceilings, connecting seamlessly to the kitchen and dining spaces. The heart of the home will be a generously sized kitchen with quartz countertops, a functional island perfect for gathering, and an appliance allowance to select your ideal appliances. The adjacent dining area provides direct access to the rear porch, extending your living space outdoors. The private primary suite will be
Show More Show Less

Property Features

3019 Pomo Circle, Crossville, Tennessee, 38572, USA offers the following features:

Bedrooms: 3
Bathrooms: 2 Full
Living Area: 1704
Property Type: Residential
Status: Active
Reference ID: 231048

Map