Wow, what a surprise packet this is.
Don't just do a drive-by, it is a MUST SEE property, to really appreciate this hidden treasure.
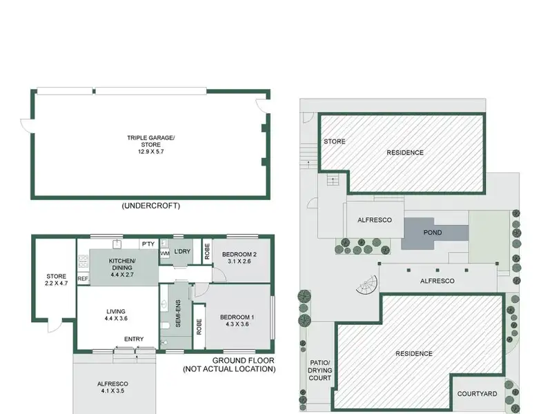
A truly unique offering in one of Claremont's most sought-after pockets, this survey-strata property on 422sqm combines modern style, flexibility, and premium location. With two independent homes on the one title - each with their own entry, parking, and outdoor spaces - this is a residence that caters beautifully to multi-generational living, extended family flexibility, or smart dual-income investment.
The Main Residence - Elegant and Effortless
Beautifully renovated and styled for contemporary living, the main home offers three bedrooms and three bathrooms, including a light-filled master suite with ensuite. The open-plan living and dining area flows seamlessly to the outdoor entertaining zone - a private, leafy retreat perfect for relaxed afternoons or weekend gatherings. Every finish has been carefully considered, blending warmth, practicality, and sophistication.
Key Highlights;
- Two storey
- Timeless aesthetically
- 3 x Bedrooms
- 3 x Bathrooms with one ensuite
- Kitchen with pedal controlled taps and servery to outside area
- Air conditioned
The Second Home - Modern and Independent
Completed in 2021, the second residence is a tasteful, self-contained two-bedroom home featuring a sleek kitchen, open living area, and modern bathroom. Designed for privacy yet connection, it's ideal for independent family members, visiting guests, or rental income. Both homes enjoy separate entry and exit points, allowing for flexible co-existence or total separation as needed.
Key Highlights;
- 2021 build
- 2 x Bedrooms
- 1 x Bathroom
- Spacious kitchen
- Spacious living & outside entertaining areas
- Under floor heating
- Air conditioned
Lifestyle & Location
Positioned directly opposite Christ Church Grammar School and moments from the river, Claremont Quarter, cafes, and train station, this property delivers unmatched convenience and prestige. The rear laneway access and garage parking for up to four cars further enhance everyday practicality. Low strata fees and the secure, survey-strata setup add to the long-term appeal.
Other Highlights
- 2 minute walk to the Swan River or Claremont shopping precinct
- Survey-strata title - 422sqm landholding
- Independent access for both residences
- Rear laneway access & secure garage parking for up to 4 cars
- Wonderful outdoor spaces for both homes
- Low strata fees
- Steps from schools, parks, shops & public transport
This exceptional property brings together luxury, flexibility, and location - whether you're seeking a family home with room for multiple generations, an elegant lock-and-leave base, or a smart investment in one of Perth's premier suburbs.
Council rates $2344.52 p/a
Water rates $1781.00 p/a
Show More
Show Less