Spacious Full Brick Apartment in Leafy Carlton Complex

Price Upon Request
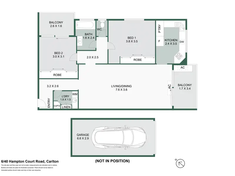
6/40 Hampton Court Road, Carlton, NSW, 2218, Australia

Property Highlights

  • Full brick construction for durability
  • Large open plan living and dining
  • Private balcony with garden views
  • Lock up garage with EV hardware
  • Split system air conditioning
  • Close to train stations and schools

Overview

Peacefully positioned within an intimate complex of only ten, this two bedroom home delivers a level of comfort and practicality that stands apart from comparable offerings in the area. The full brick construction, generous room sizes, and thoughtful layout create a residence that feels balanced, private, and highly functional. Each space has been designed to maximize natural light, airflow, and everyday usability. The floor plan supports a wide range of lifestyles. Indoor and outdoor areas connect with ease, and the proportions throughout provide flexibility for families, professionals, downsizers, and investors focused on secure long term returns. Property Features Include: - Two well sized bedrooms equipped with built in wardrobes - Second bedroom opens to a private balcony - Large open plan living and dining areas flowing to a bright entertainer's balcony - Contemporary kitchen with ample storage and quality benchtops - Oversized bathroom with combined shower and bathtub - Internal laundry with valuable extra storage - Mid floor position with leafy outlooks and strong cross ventilation - Private balcony with a view over landscaped common gardens - Lock up garage with hardware suitable for EV setup - Split system air conditioning - Double brick construction ensuring comfort and durability - NBN ready for those who work from home Location Highlights: - Walking distance to Carlton and Allawah train stations - Quiet, tree lined street within a tightly held pocket - Close to well-regarded public, private, and selective schools - Minutes to Hurstville Westfield, dining, supermarkets, and daily conveniences - Quick access to key arterial roads connecting to the Sydney CBD and wider surrounds This apartment offers an opportunity to secure a spacious, comfortable home in a well-regarded Carlton enclave. The combination of solid construction, generous interiors, and a convenient setting positions the property as an appealing choice for both lifestyle and investment purposes. Total size: 108sqm approx. Unit + Balcony: 89sqm approx. Garage: 19sqm approx. Approximate Outgoings Per Quarter: Strata Rates: $724.90 Council Rates: $429 Water Rates: $204.13
Show More Show Less

Property Features

6/40 Hampton Court Road, Carlton, NSW, 2218, Australia offers the following features:

Bedrooms: 2
Bathrooms: 1 Full
Property Type: residential
Status: Active
Reference ID: 222P621412

What's Nearby

Local businesses near 6/40 Hampton Court Road, Carlton, NSW, 2218, Australia:

Hospital: < 1 mile
Gym: < 1 mile
Grocery/Shopping Center: < 1 mile
Public Transportation: < 1 mile
School: < 1 mile
Police Station: < 1 mile

Map

The Local Vibe