Newly Built Wooden Villa with Panoramic Views

EUR €460,000 (USD $536,037) *current conversion
Cagli, Italy

Property Highlights

  • Newly built wooden villa with quality finishes
  • Large 800sqm garden with pool potential
  • Spacious 45sqm garage
  • Panoramic terrace with hill views
  • Energy-efficient 6Kw photovoltaic system
  • Quiet residential area near town center

Overview

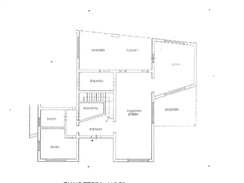
Cagli (PU) 5 minutes from the center of Cagli, in a newly urbanized residential context, quiet and surrounded by greenery, with breathtaking views of the historic center of the town and the surrounding hills. We offer for sale newly built (2015) wooden villa of 240sqm on two floors with garden of 800sqm. On the ground floor we find a large living area with eat-in kitchen that accesses the porch with panoramic views of the hills and the village of Cagli, master bedroom, bathroom, laundry, pantry and a large garage of 45sqm complete the floor. On the second floor the sleeping area consists of single bedroom, master bedroom, bathroom, hallway with walk-in closet, master bedroom with bathroom, walk-in closet and panoramic terrace. An exclusive uncovered space of 800sqm with provision for a swimming pool completes the property. The property was built for the needs of a family, the spaces are comfortable, well organized and functional. The wooden structure, the latest generation plant engineering and quality finishes have been chosen in detail. 6Kw photovoltaic system. Ideal for families looking for a panoramic location without sacrificing services and quality of life. Request: 460,000.00 Tratt. "APE A4" IPE: 123 kwh/sqm/year
Show More Show Less

Property Features

Cagli, Italy offers the following features:

Bedrooms: 4
Bathrooms: 3 Full
Living Area: 2583.34sf
Property Type: Single Family
Status: Active
Reference ID: 85948142

Map