Sustainable Two-bedroom Apartment in Urban Co-housing Community

Price Upon Request
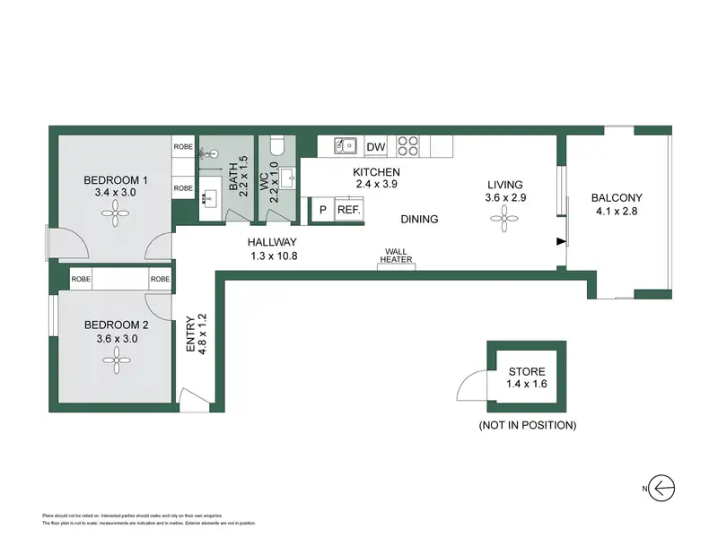
103G/24 Hope Street, Brunswick, VIC, 3056, Australia

Property Highlights

  • South-facing oversized terrace with city views
  • High 7.9 NatHERS energy rating
  • Terrazzo stone kitchen benchtop and backsplash
  • Hydronic heating and ceiling fans installed
  • Secure bike parking and GoGet car access
  • Close to public transport and vibrant shops

Overview

Situated in Urban Coup, Australia's first privately funded inner-urban co-housing community, this beautifully crafted two-bedroom apartment with an oversized terrace forms part of the ambitious Nightingale Village. Co-designed by its residents alongside renowned architecture firms Architecture Architecture and Breathe Architecture, this boutique building of only 29 apartments delivers exceptional sustainability, contemporary design and genuine and intentional community living. The apartment delivers a beautiful south-facing aspect, a 7.9 NatHERS rating, high ceilings, double glazing, hydronic heating, ceiling fans and engineered floorboards. The living room features two floor-to-ceiling south-facing double-glazed doors that open onto the generous terrace, offering sweeping views, including glimpses of the city, and abundant natural light. The galley-style kitchen is beautifully appointed with a terrazzo stone benchtop and splashback, Fisher & Paykel double-drawer dishwasher, induction cooktop, electric oven, pull-out pantry, bespoke cabinetry and extensive storage. A unique south-facing lightwell illuminates the kitchen with natural light and fresh air while overlooking serene views. Throughout the home, locally designed and made curtains by Studio Blinds Brunswick enhance the interior. Velvet blackout curtains and soft linen sheers provide flexibility, comfort and a refined finish in every room. The apartment also benefits from a peaceful south-facing balcony that brings in additional natural light and encourages excellent crossflow ventilation when combined with the north-facing terrace doors and operable windows in the bedrooms. Both bedrooms feature hardwood flooring and are filled with light. The primary bedroom includes a built-in vanity, ample storage, a ceiling fan and a north-facing Juliette balcony that opens to a tranquil fern garden and climbing plants. This room enjoys gentle morning north-facing sunshine and is quietly positioned at the rear of the apartment. The second bedroom, also ideal as a dedicated study as shown by the current owners, is a bright, adaptable space for work or relaxation. The bespoke bathroom includes a terrazzo tiled walk-in shower with brass fittings, a stylish half-circle mirrored cabinet and generous vanity storage. This apartment also features a separate WC to the bathroom, with terrazzo flooring and additional vanity basin. A defined and spacious entry hall, excellent internal storage and a secure external storage cage enhance the home's practicality. Crossflow ventilation throughout creates a refreshing breeze. Residents enjoy extensive shared facilities, including a communal kitchen and dining room and living space on the ground floor, multi-purpose room (used for movie nights, yoga etc.), two guest rooms, music room, workshop, laundry with eco-friendly detergent provided, secure bike parking, fourth floor outdoor decking/dining space with electric BBQs and generous outdoor spaces. Access to up to fourteen GoGet cars in the basement supports sustainable and flexible transport options. Two commercial tenancies flank the building's entrance on Hope Street, one of which is owned by Urban Coup, with rental income used to reduce Owners Corporation fees. With exceptional environmental credentials, carbon-neutral operation and a design shaped directly by the people who live here, this development is one of Australia's most sustainable apartment complexes. Perfectly positioned just a short walk from Anstey Station, the Upfield bike path, Sydney Road's diverse cafes, bakeries, shops, live music venues and restaurants, as well as the 19 tram to the CBD and university and medical precinct, this rare offering combines outstanding sustainability, true community and premier inner-city residence.
Show More Show Less

Property Features

103G/24 Hope Street, Brunswick, VIC, 3056, Australia offers the following features:

Bedrooms: 2
Bathrooms: 1 Full
Property Type: residential
Status: Active
Reference ID: 222P618801

Map