Prime Development Land in Big Bay with Approvals

ZAR R32,775,000 (USD $1,942,169) *current conversion
Cape Town, WC, South Africa

Property Highlights

  • Vacant development land in Eden of the Bay
  • Size: 3992 square meters
  • Zoning: GR2 with 15m height limit
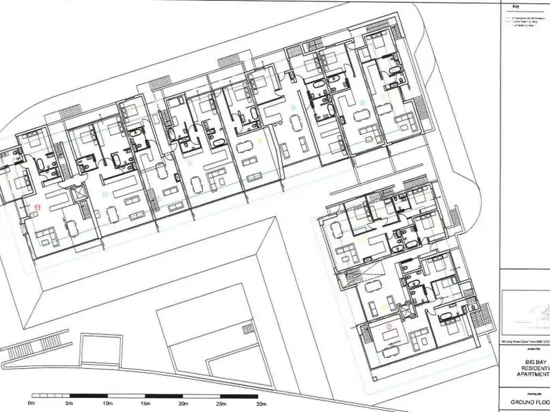
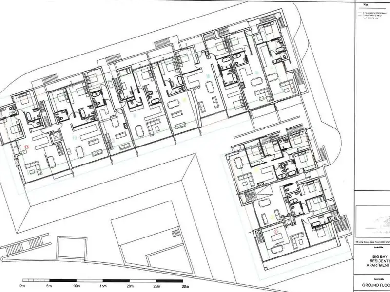
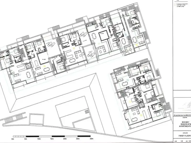
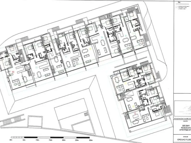
  • Approved for 25 units and 50 parking bays
  • Located near Blouberg beachfront upgrade
  • Development rights in place, ready for SDP submission

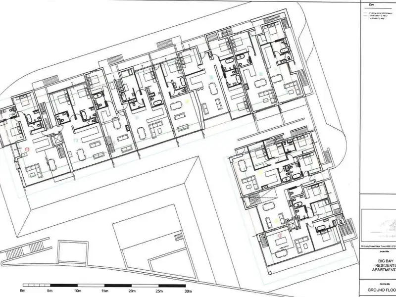
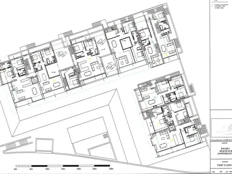
Overview

Vacant Development land for sale in Big Bay: R 28 500 000.00 excluding VAT One of the last remaining parcels of land in the Eden of the Bay area. Development rights all ready in place with only a final SDP submission needed. Blouberg beachfront currently under going R 100 million upgrade! Development Parameters: Size - 3992sm Zoning - GR2 Height restriction: 15m Floor Factor: 1.0 Building lines:4.5m Approved Bulk: 2782sm Current Approvals: 25 units & 50 parking bays Price per sm - R7125 excluding VAT Enquire for a detailed development feasibility report! Viewing by appointment only
Show More Show Less

Property Features

Cape Town, WC, South Africa offers the following features:

Property Type: Land
Status: Active
Reference ID: 7102854e-67a1-423a-a

Map