Property Features
Berlin, Germany offers the following features:
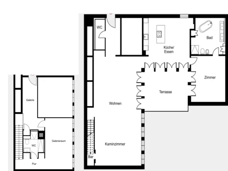
Bedrooms:
2
Bathrooms:
2 Full
Living Area:
2206.6sf
Property Type:
Residential Lease
Status:
Active
Reference ID:
25136026
Map
The Local Vibe
See all Local Photos
See all