Modern Single-story Cluster Home in Zululami Estate

ZAR R4,750,000 (USD $279,668) *current conversion
Ballito, South Africa

Property Highlights

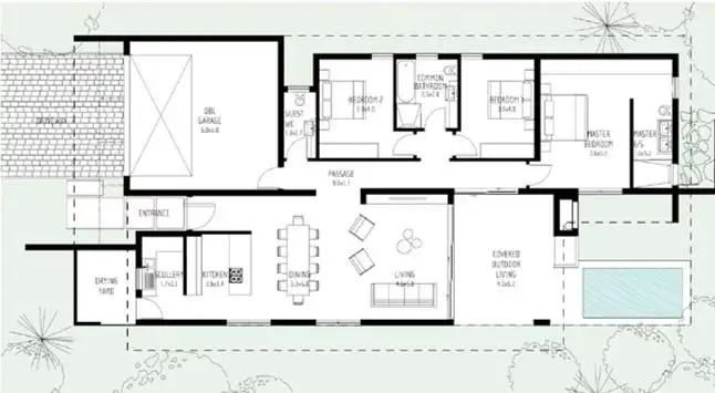
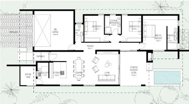
  • 475m² full title property
  • Open-plan kitchen and living space
  • Kitchen with scullery and guest loo
  • Corner covered patio with built-in braai
  • Double garage with scullery access
  • Access to private beach and estate facilities

Overview

Please contact the agent prior to the showday to arrange access to the estate This chic 3-bedroom single-story cluster is being built within Zululami Luxury Coastal Estate. With a spacious 475m┬▓ full title property, this modern home provides an inviting open-plan kitchen and living space once you enter the front door Kitchen includes a scullery with guest loo adjacent. The lounge, and dining area, all of which seamlessly lead out to a corner covered patio and built in braai Ideal for entertaining and enjoying the outdoors, a swimming pool is offered as an optional extra. The main bedroom features a luxurious en-suite bathroom with large shower and double vanity The other two bedrooms are well-sized and share a bathroom with bath and shower. The property is fully air-conditioned and comes with a double garage with access directly from the scullery, all included in this price! No transfer duty! providing an ideal opportunity for those seeking a great investment in a prime location within the Zululami Luxury Coastal Estate. Full access to all Zululami and Seaton Estate facilities including, private beach access, beach clubhouse, sports pavilions, kids play areas, kids pools with slides, nature trails, equestrian facilities, making this a lifestyle second to none
Show More Show Less

Property Features

Ballito, South Africa offers the following features:

Bedrooms: 3
Bathrooms: 2 Full
Property Type: Residential
Status: Active
Reference ID: 2573332

Map