Charming Newly Renovated Home Steps from Bad Wimpfen's Old Town

EUR €935,000
Bad Wimpfen, Germany

Property Highlights

  • Extensively refurbished detached house
  • Modern designer fitted kitchen
  • Two terraces for outdoor relaxation
  • Energy-efficient heating, energy class A+
  • Parking with electric vehicle charging stations
  • Close to old town and Lidl HQ

Overview

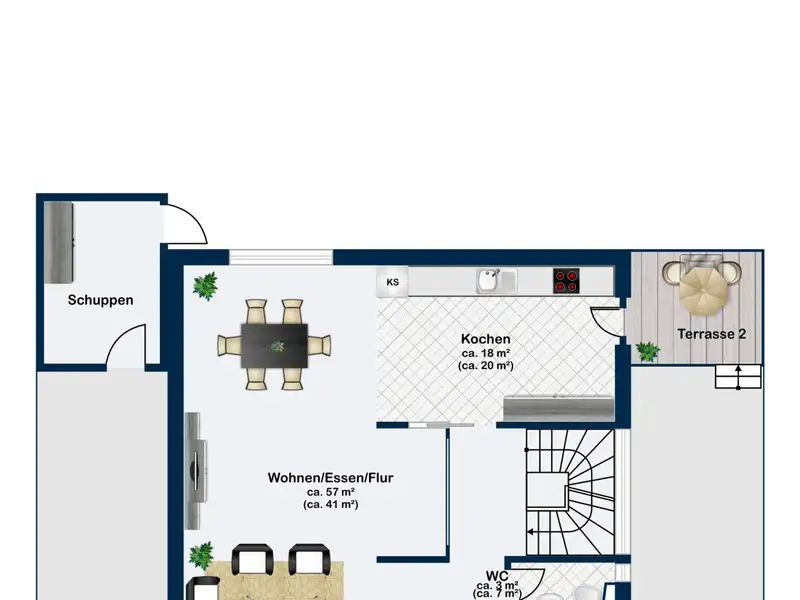
First-time occupancy with class - living between old town flair and proximity to the workplace This charming detached house is now available for first-time occupancy following extensive refurbishment and combines modern living comfort with a stylish, cozy ambience. The property is located in beautiful Bad Wimpfen, within walking distance of the Lidl Germany headquarters - ideal for professionals who appreciate short distances. The picturesque old town with its stores, cafés and all facilities for daily needs is also within easy walking distance. With around 169 m² of living space and two floors, the house impresses with its well thought-out room layout and light-flooded rooms: On the first floor, you will find a spacious living and dining area with direct access to the new designer fitted kitchen, equipped with modern electrical appliances - perfect for anyone who loves to cook and enjoy themselves. A stylish glass block alcove houses the technology for a functional home office - ideal for mobile working. A guest WC completes the space. Upstairs you will find a modern bathroom with shower, bathtub and bidet as well as two bright bedrooms that can be used flexibly as children's rooms, guest rooms or dressing rooms. The basement offers additional space: a versatile hobby room, which is also suitable as an office or guest room, a utility room and the classic boiler room. Two terraces invite you to relax and enjoy the sunshine. There are two parking spaces with charging stations for electric vehicles right next to the house. Thanks to the complete renovation, you benefit from energy-efficient heating technology (energy class A+), new windows, modern electrical and sanitary installations and high-quality surfaces. The entire design and choice of colors was based on the principles of feng shui - for a harmonious, balanced living experience. This house is ideal for couples or small families who value quality, style and a quiet residential location in a mature environment. We look forward to receiving your inquiry and to presenting this special home to you in person.
Show More Show Less

Property Features

Bad Wimpfen, Germany offers the following features:

Bedrooms: 2
Bathrooms: 1 Full
Living Area: 1823.51sf
Property Type: Residential
Status: Active
Reference ID: 25188180

Map