Architectural Beach House with Ocean to Pittwater Views

Price Upon Request
83 Marine Parade, Avalon Beach, NSW, 2107, Australia

Property Highlights

  • Oceanfront headland setting with panoramic views
  • Near-level 1214sqm parcel with broad lawns
  • Architecturally designed, masterbuilt in 2025
  • Heated mineral pool and alfresco entertaining areas
  • Chef's kitchen with marble island, Fisher & Paykel appliances
  • Five-car garage with internal access and storage

Overview

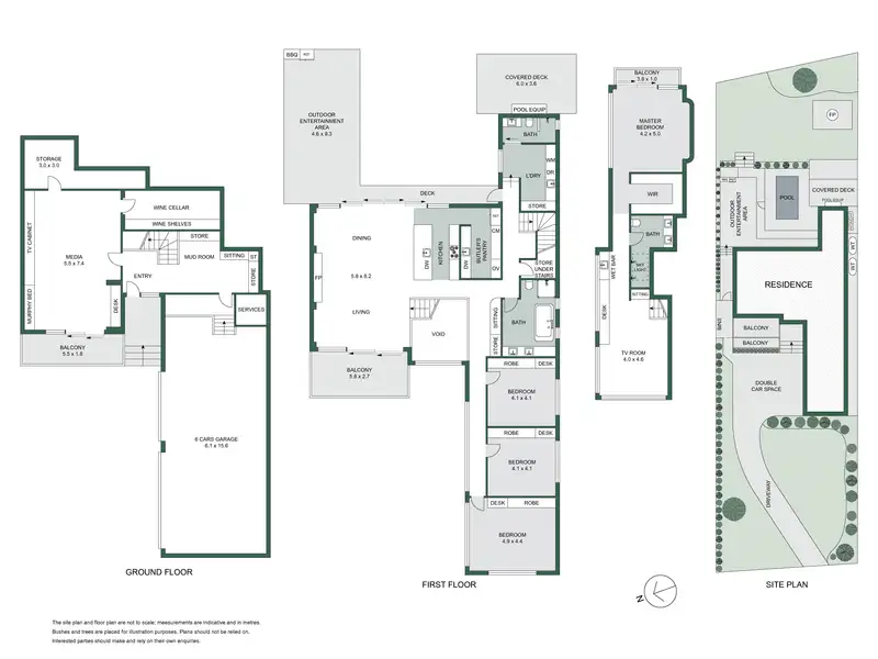
There's a reason this stretch of Marine Parade is considered the finest spot in North Avalon; the parcels are expansive and level, while the spectacular views reach from the Pacific to Pittwater. 'Sol Marine' is more than a match for the premier setting–architecturally designed and completed just this year, this exquisite beach house is an absolute showstopper; it's sophistication is derived from the simplicity of its striking forms, combined with innovative, future-proof design principles. Masterbuilt by the award-winning firm LVD Industries, the home combines a rich material palette with unfaltering attention to detail, brilliantly considered spatial design and premium-quality finishes throughout. One of the most remarkable features of 'Sol Marine' lies in the name–with its never-to-be-built-out views, this home is bathed in natural light, from ocean sunrises to the breathtaking beauty of Pittwater sunsets. The design is artfully arranged around a private entertaining terrace and heated mineral pool, creating an environment that seems to entirely erase the boundaries between indoors and out. The underlying beauty of the home is found in its extraordinary livability across all three levels - the seamless integration of exceptional design and functionality results in a refined, cohesive, and effortlessly elegant home. - Oceanfront headland setting with views from the Pacific to Pittwater - Stunning property, broad green lawns on a near-level 1214sqm parcel - Architecturally designed, masterbuilt by LVD Industries and completed in February 2025 - Luxe livability; fusion of striking forms + clean architectural lines - State-of-the-art appointments and finishes; custom joinery throughout - Green smart energy principles; focus on thermal + acoustic properties - Three exquisite levels with multiple living zones and sunlit terraces - Design by AVD Interiors; landscape by Greenology - Stunning chef's kitchen features marble island and benchtops, a full suite of Fisher & Paykel appliances + generous butler's pantry - Sheltered and alfresco entertaining areas and heated mineral pool - Sumptuous, full-floor master retreat with separate lounge, bespoke walk-in robe/dressing room and spectacular ocean views - Additional queen-sized bedrooms with custom-designed robes + desks - Bathrooms/laundry combine award-winning design with underfloor heating - Five-car garage with internal access plus large lock-up storage room - Smart home technology control lights
Show More Show Less

Property Features

83 Marine Parade, Avalon Beach, NSW, 2107, Australia offers the following features:

Bedrooms: 4
Bathrooms: 3 Full
Property Type: residential
Status: Active
Reference ID: 62P30453

Map