Prime .40-acre Lot Minutes from Downtown Austin

USD $1,790,000
2501 Inwood Place, Austin, Texas, 78703, USA

Property Highlights

  • .40-acre corner lot
  • Close to downtown (1.5 miles)
  • Demolition permit secured
  • Build a single-family home
  • Distinctive bridge feature
  • Captivating topography for design

Overview

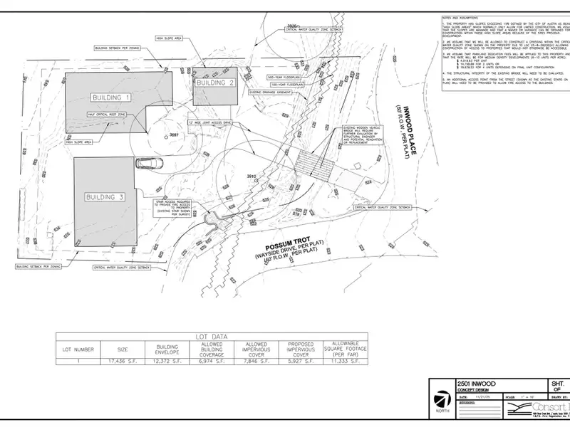
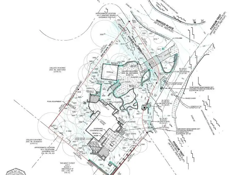
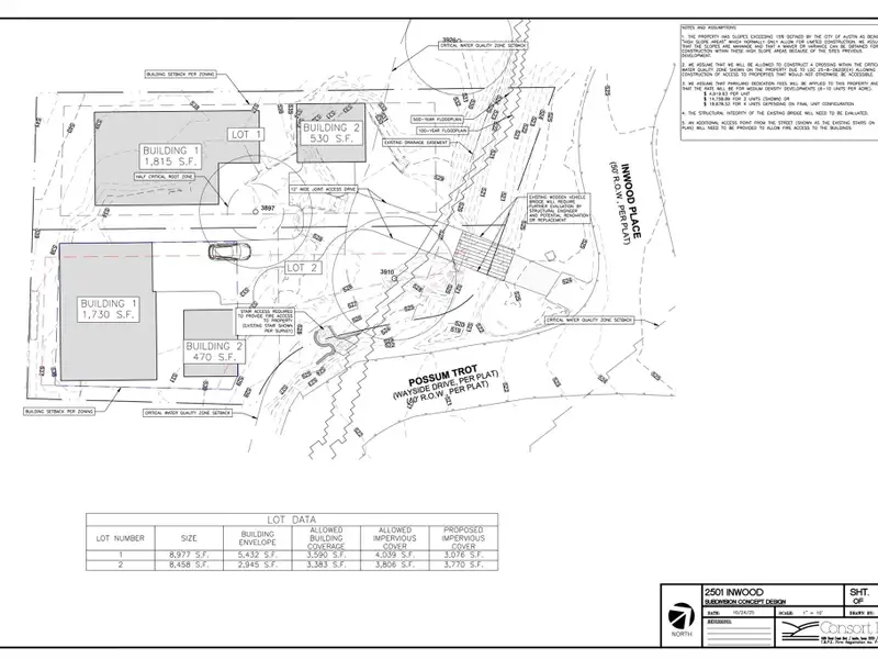
Embrace the opportunity of an expansive .40-acre corner lot located just minutes from downtown. Recently demolished and cleared, the property is ready for immediate action, offering a clean slate for your next vision. Now enhanced with professional development concepts, this unique site includes SFR private compound schematics, two-structure design options, and subdivision concepts, giving buyers multiple pathways to bring their vision to life. With captivating topography, a distinctive bridge feature, and a stellar location just 1.5 miles from downtown, this highly buildable lot offers an exceptional opportunity to collaborate with your architect, reimagine what's possible, or break ground on a truly extraordinary Central Austin retreat.
Show More Show Less

Property Features

2501 Inwood Place, Austin, Texas, 78703, USA offers the following features:

Property Type: Land
Status: Active
Reference ID: 8535886

What's Nearby

Local businesses near 2501 Inwood Place, Austin, Texas, 78703, USA:

School: < 1 mile
Public Transportation: < 1 mile
Gym: < 1 mile
Grocery/Shopping Center: < 1 mile
Hospital: < 1 mile
Police Station: 1.3 miles

Map