Prime Development Opportunity in Ara Hills, Orewa

Price Upon Request
28 & 30 Paparahi Place, Wainui, Auckland, 0992, New Zealand

Property Highlights

  • Prime development site with 2 titles
  • RC approved for 14 new homes
  • Surrounded by native bush and conservation land
  • Close to Orewa Beach and Nukumea Reserve
  • Easy motorway access via Orewa exit
  • Network of walking trails and parks nearby

Overview

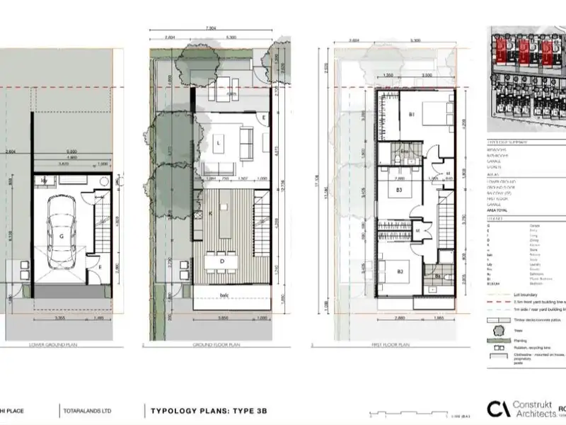
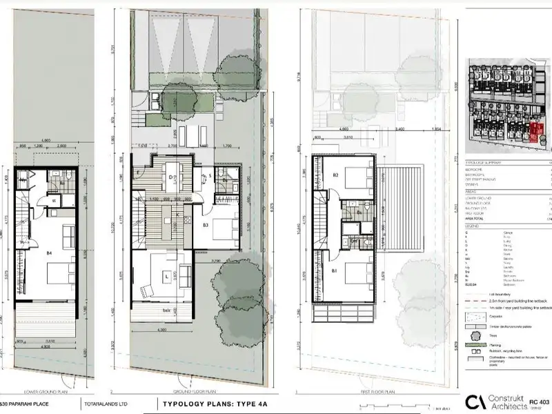
Situated in Ara Hills, Orewa is this prime development opportunity to secure this superlot with 2 titles & surrounded by evergreen conservation land and native bush providing privacy and serenity. Superb fully serviced site, the hard part has been done - RC approved for 14 new homes, a total 2270m2 proposed floor area will have the following: 6 Duplexes of 3 pair of 3 bedroom, 2 bathroom, 1 garage- 179m2 each 8 Townhouses of two blocks: 7 x 3 bedroom, 3 bathroom, 1 off street parking - 146m2 Each 1 x 4 bedroom, 2 off street parking, 4 bathroom - 174m2 Brick and timber cladding with profile metal roofing and solid feature panels. Ara Hills is nestled in Orewa's new subdivision, bordered by 172 hectares Nukumea Reserve & a short drive to Orewa Beach. The entire area, proudly developed by AV Jenning Homes, follows the contours of the land to create a series of villages interconnected by a network of walking trails, pocket parks and nature reserves throughout, enabling residents to engage with nature and each other. Situated directly off the Orewa exit (#394), access to the motorway north and south couldn't be any easier. One of the few sections in the entire area which are allowing for medium density homes, the finished homes here are expected to be snapped by those modern families or downsizers who want to spend less but still be able to live in the dream quality home in a premium neighborhood, Offers wanted - this lucrative project could be yours!
Show More Show Less

Property Features

28 & 30 Paparahi Place, Wainui, Auckland, 0992, New Zealand offers the following features:

Property Type: Residential
Status: Active
Reference ID: 844094

What's Nearby

Local businesses near 28 & 30 Paparahi Place, Wainui, Auckland, 0992, New Zealand:

School: < 1 mile
Gym: < 1 mile
Public Transportation: < 1 mile
Grocery/Shopping Center: < 1 mile
Hospital: 1.3 miles
Police Station: 1.9 miles

Map