Spacious 1267m² Flat Land with Development Potential

Price Upon Request
73 Vale Road, Auckland, Auckland, 1071, New Zealand

Property Highlights

  • Large 1267m² flat land parcel
  • Elevated private setting with wide driveway
  • Potential to build 2-3 large houses
  • Existing solid 1940s stucco home
  • Internal garage plus large parking area
  • Close to village, beach, and top schools

Overview

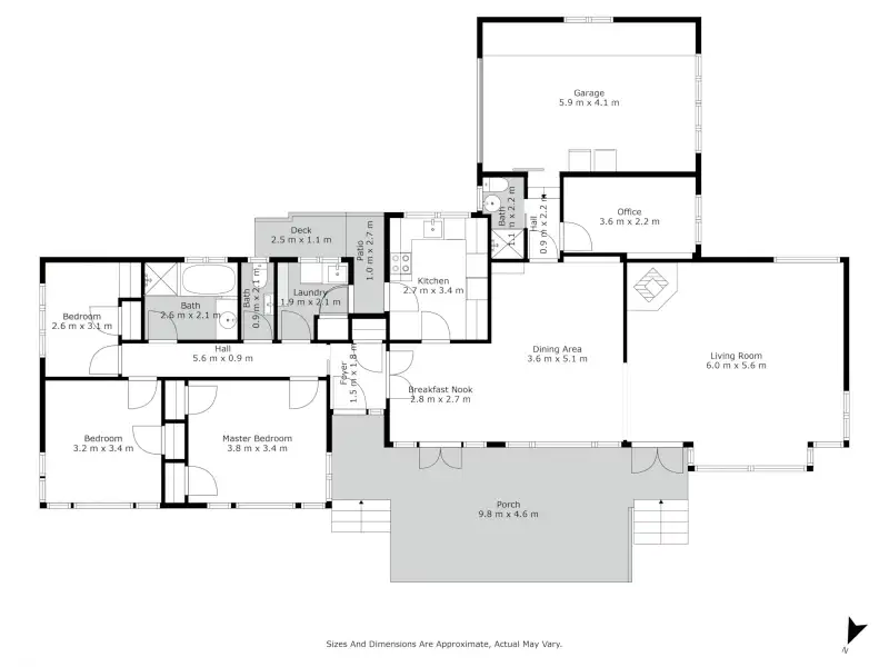
Discover this massive 1267m² piece of flat land, peaceful and private up an extra wide driveway. The superbly elevated property is an exceptional do-up opportunity or an easy development site with space to build 2 or 3 large houses, each big enough for swimming pools. A throwback to St Heliers the way it used to be, the existing solid 3-bedroom 1940s stucco home (with office) on 1-level is charming with a simple layout and large living areas. These soak up northern sun and lovely garden views through huge, elegant picture windows. Set among other large quality homes on big sites, the property is surrounded by well-established leafy trees and expansive lawns. Internal garaging is included, along with an enormous parking area for numerous vehicles – ideal during any future construction phase. St Heliers Village and beach are minutes away and it is zoned for top schools including Churchill Park Primary, St Ignatius and Glendowie College. Whether you’re looking to build the dream or to create the dream for several other lucky families – the time to snap up the perfect property is right now. An incredible opportunity!
Show More Show Less

Property Features

73 Vale Road, Auckland, Auckland, 1071, New Zealand offers the following features:

Bedrooms: 3
Bathrooms: 2 Full
Property Type: Residential
Status: Active
Reference ID: 923707

What's Nearby

Local businesses near 73 Vale Road, Auckland, Auckland, 1071, New Zealand:

Public Transportation: < 1 mile
School: < 1 mile
Gym: < 1 mile
Hospital: < 1 mile
Grocery/Shopping Center: < 1 mile
Police Station: 1.9 miles

Map