Elevated Coastal Site with Panoramic Sea Views and Consents

Price Upon Request
4 Moorgreen Heights, Auckland, Auckland, 0630, New Zealand

Property Highlights

  • Elevated 2,063m² coastal site with sea views
  • Full Resource, Building, and EPA consents approved
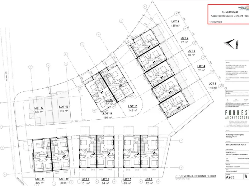
  • Consent for 15 architecturally designed homes
  • Close to Long Bay Park and Albany commercial hub
  • Zoned for top decile 10 schools
  • Quiet family-friendly cul-de-sac location

Overview

A golden opportunity for developers and visionary investors – this premium coastal site in Torbay offers sweeping sea views, and comes with full Resource Consent (RC), Building Consent (BC), and EPA approval for 15 architecturally designed duplex or terrace homes. All the hard work is done – simply take the reins and build. Positioned on an elevated 2,063m² corner site in one of the North Shore’s most desirable neighbourhoods, the project is perfectly designed to capture stunning views of Rangitoto Island and the Hauraki Gulf – an exceptional selling point for future homeowners. Why This Site? • Elevated approx. 2,063m² freehold land with commanding sea views • Minutes from Long Bay Regional Park, Waiake Beach, and Albany’s commercial hub • Zoned for high-demand decile 10 schools: Long Bay School, Northcross Intermediate, and Long Bay College • Quiet, family-friendly cul-de-sac in a well-established community Project Highlights • Consent granted for 15 high-quality, 3-storey duplex or terrace homes • Resource Consent, Building Consent, and EPA approval all in place • Homes oriented to maximise sea views and natural light from multiple levels Opportunities like this – with scale, views, location, and consents ready – are few and far between. Contact us today to receive the full document pack, arrange a site inspection, and explore the potential of this rare coastal development.
Show More Show Less

Property Features

4 Moorgreen Heights, Auckland, Auckland, 0630, New Zealand offers the following features:

Bedrooms: 4
Bathrooms: 2 Full
Property Type: Residential
Status: Active
Reference ID: 913463

What's Nearby

Local businesses near 4 Moorgreen Heights, Auckland, Auckland, 0630, New Zealand:

Public Transportation: < 1 mile
School: < 1 mile
Gym: < 1 mile
Grocery/Shopping Center: < 1 mile
Hospital: < 1 mile
Police Station: 1.5 miles

Map