Altdorf, Germany offers the following features:
Spacious Mid-terrace House with Two Covered Loggias
Landshut, Germany
4 Beds | 2 Bath
EUR €695,000USD $812,847
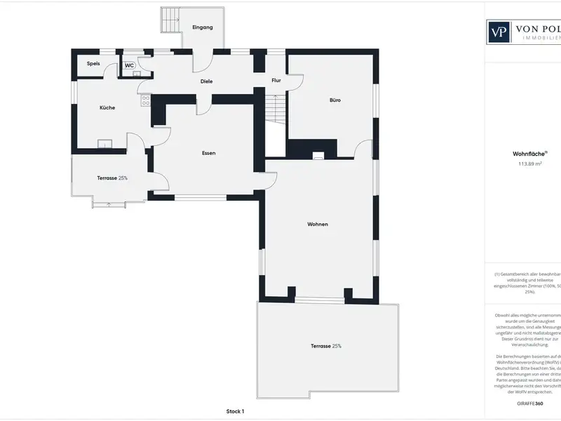
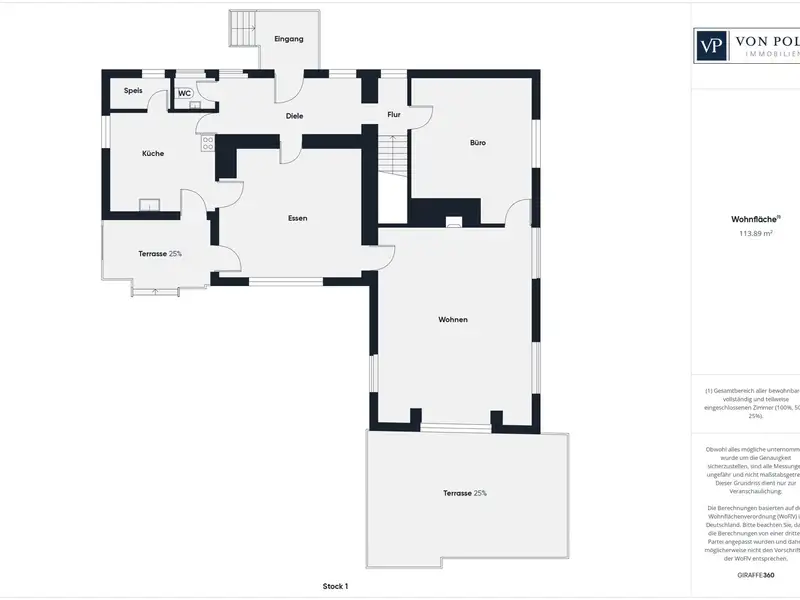
Modern Family Terraced House with Spacious Living Areas
Altdorf, Germany
EUR €645,000USD $754,369
Attractive Office Unit with Rooftop Terrace and Flexibility
0 Beds | 0 Bath
Price Upon Request
Modern High-quality Office Space with Efficient Layout