1.420.000,00 €

Select Currency

Antillean Guilder

Argentina Peso

Aruban Florin

Australian Dollar

Bahamian Dollar

Barbadian Dollar

Belize Dollar

Bermudan Dollar

Bitcoin

Brazil Real

Bulgarian Lev

Canadian Dollar

Cayman Islands Dollar

Chile Peso

China Yuan Renminbi

Columbian Peso

Costa Rican Colón

Czech Republic Koruna

Denmark Krone

Dominican Peso

Euros

Fiji Dollar

Ghanaian Cedi

Honduras Lempira

Hong Kong Dollar

Hungary Forint

Iceland Krona

India Rupee

Indonesia Rupiah

Israel Shekel

Jamaican Dollar

Japan Yen

Korea (South) Won

Lebanese Pound

Malaysia Ringgit

Mexico Peso

Mauritian Rupee

New Zealand Dollar

Nicaraguan Córdoba

Nigerian Naira

Norway Krone

Pakistan Rupee

Panamanian Balboa

Peruvian Sol

Philippine Peso

Poland Zloty

Russia Ruble

Singapore Dollar

South Africa Rand

Sweden Krona

Switzerland Franc

Taiwan New Dollar

Thailand Baht

Trinidad & Tobago Dollar

Turkey Lira

United Arab Emirates Dirham

United Kingdom Pound

Uruguayan Peso

US Dollar

Viet Nam Dong

Qatar Riyal

 

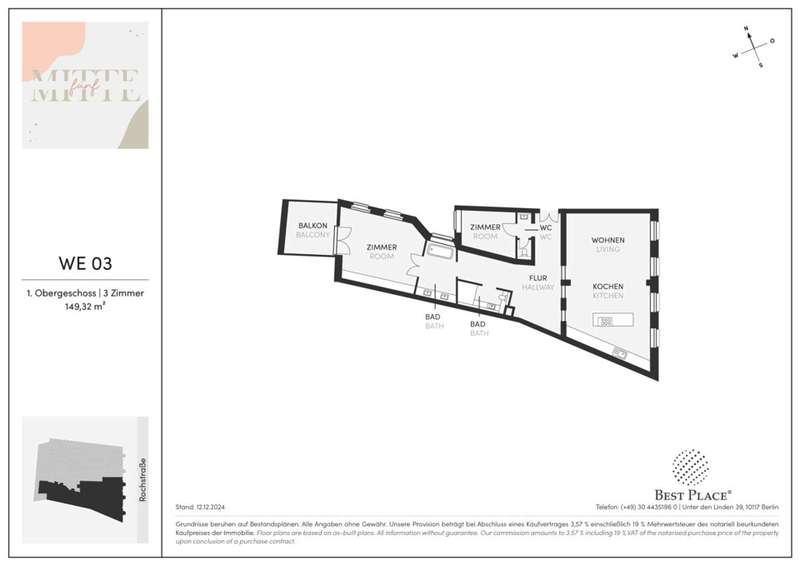
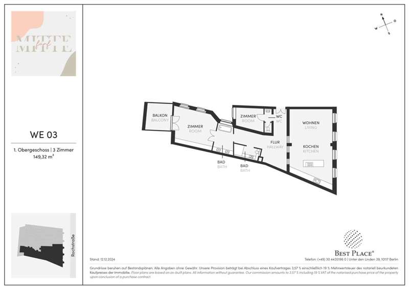
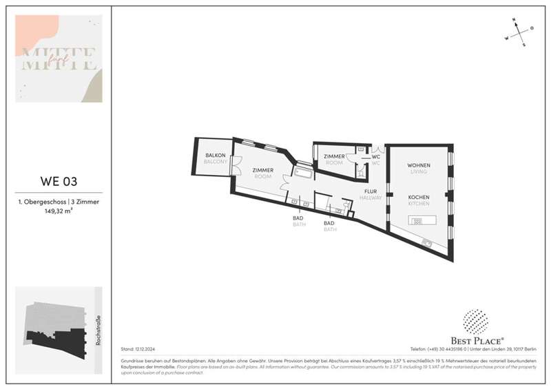
Rochstraße 5, 10178 Berlin #59410 Berlin, Germany 10178

Wilhelminian charm meets clean chic: a loving renovation with an eye for detail, exquisite materials and world-class design make this 4-room apartment your ideal residence in the heart of the city. The heart of the apartment is the sunny living room with kitchen: at around 57 m², it offers plenty of space for a large dining area, a sitting area, bookshelves up to the ceiling or whatever you want in your home. In the kitchen area, a kitchen island with hotplates and a small storage area provide convenience for cooking and enjoying, while the high-quality fitted kitchen with a marble look turns every simple dish into an event. The wonderfully high ceilings and sophisticated lighting create a sense of space and a cozy feeling at the same time. Relax here every evening or receive guests for lavish celebrations. A study can be separated from the eat-in kitchen if required. The elegant shower room has a level-access rain shower and high-quality fittings in a clean design. Another double washbasin and an elegant free-standing bathtub await you in the directly adjoining anteroom of the bathroom - pure luxury. You enter your courtyard-facing room through a modern double door, where you can set up your own private living room, for example. It offers access to your large, courtyard-facing balcony, where you can enjoy refreshing coolness even in hot temperatures. It offers enough space for plants, an elegant seating area and atmospheric lighting. Set up your personal outdoor oasis here, where you can enjoy a cocktail on a warm summer night or a coffee in the first rays of the day.

Amenities

  • Bedrooms: 3
  • Full Bathrooms: 1
  • Partial Bathrooms: 0
  • Property Type: Condo
  • Home size: 1,607 ft2 / 149.29 m2
  • MLS: 3035408
  • Status: Active

Property brokered by

Best Place Zabel

+49 (176) 20594225

Presented by Nadine Mirke

  • +49 (0) 172 2387

Contact Nadine Mirke

Contact Agent

Similar Listings

  • Floorplan
    Marshallstraße 1, 14169 Berlin #60369
    Berlin, Germany 1.655.294,00 € Bedrooms: 3 Full Bathrooms: 1 Details
  • 1
    Pallasstraße 24-26, 10781 Berlin #59696
    Berlin, Germany 1.560.557,00 € Bedrooms: 4 Full Bathrooms: 1 Details
  • 1
    Simplonstraße 12, 10245 Berlin #59486
    Berlin, Germany 1.739.000,00 € Bedrooms: 4 Full Bathrooms: 1 Details
  • Portale
    Berlin, Germany $1,791,503 Bedrooms: 6 Full Bathrooms: 4 Details
  • Ausblick
    Klosterstraße 65, 10179 Berlin #42896
    Berlin, Germany 1.595.000,00 € Bedrooms: 2 Full Bathrooms: 2 Details


Language

Sign In

To save and share favorite properties