Exceptional Residence on over an Acre in Kent Neighborhood

USD $6,495,000
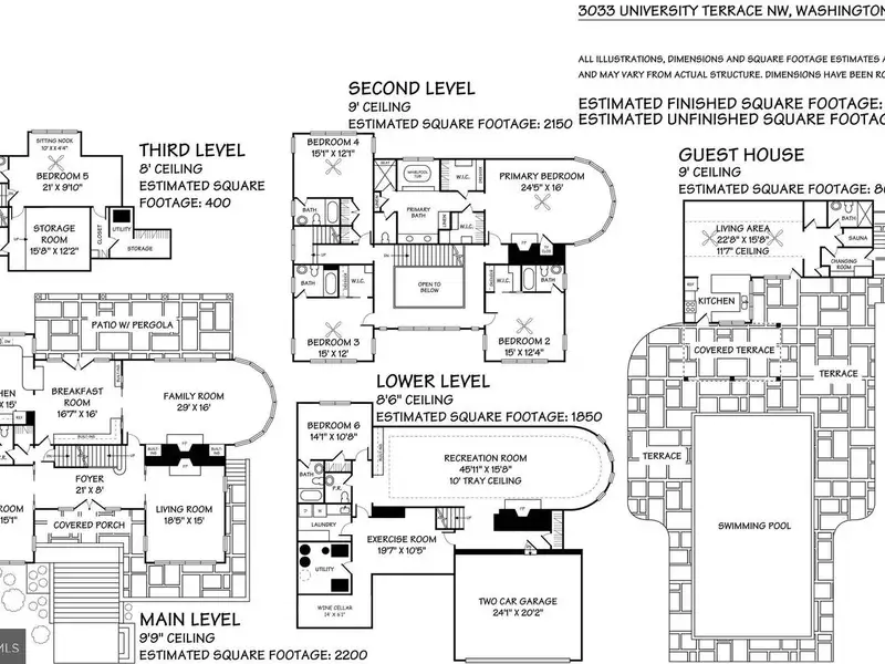
3033 University Terrace Northwest, Washington, District of Columbia, 20016, USA

Property Highlights

  • Over one acre lot in coveted Kent neighborhood
  • Gourmet kitchen with premium Viking appliances
  • Heated outdoor pool with spa and hot tub
  • Separate pool house with full kitchen and sauna
  • Private in-law suite and fitness room
  • Close to parks, trails, and top schools

Overview

Fabulous opportunity to possess a truly extraordinary residence on over acre in the coveted Kent neighborhood, where timeless architecture meets modern sophistication. Built by Jim Gibson and beautifully updated and maintained since then, this remarkable property seamlessly blends grand-scale living, spectacular amenities, and resort-style outdoor spaces within a serene and private setting. Inside, the homes inviting layout showcases expansive sun-lit rooms, high ceilings, and gleaming hardwood floors that enhance its sense of openness and elegance. Gracious formal living and dining rooms and a gourmet kitchen outfitted with premium Viking appliances, custom cabinetry, and generous workspace set the stage for elegant entertaining and everyday living. Designed with both comfort and sophistication in mind, the kitchen and adjoining gathering spaces, including a separate breakfast room with access to the covered patio and grounds and adjacent to a spacious family room with stone fireplace, create a seamless flow ideal for hosting family and friends. Upstairs, five generously sized bedrooms, each with its own en-suite bath, offer private sanctuaries for family and guests alike. The primary suite is a true retreat, with a fireplace, a spa-like bathroom and two walk-in closets, and is graced with a gorgeous bay window that fills the room in natural light. The fabulous secondary bedrooms are all filled with character and light. The lower level, ideal for both relaxation, offers a recreation room, a private in-law suite, a temperature-controlled wine cellar, dedicated fitness room, laundry room, and an additional half bath. Step outside to experience an unparalleled outdoor retreat featuring a gorgeous heated pool, stunning spaces for al fresco dining, play area, spa/hot tub and a spectacular pool house/guest house. This luxurious extension of the home includes a full kitchen, spacious living area with raised ceiling, changing areas, a sauna, full bath, and a second grilling area and covered patio, all further enhancing the outdoor entertainment experience. Residents enjoy nearby shopping and the restaurants of Foxhall, Macarthur Boulevard and Georgetown, as well as access to nearby parks and the trails of Battery Kemble and Rock Creek. Numerous well-regarded private schools are close by, as is the award winning Key Elementary School. Reagan Airport and major commuter routes to DC, Maryland and Virginia are easily accessed. Rarely does a property of this caliber become available that seamlessly blends luxury, comfort, and lifestyle into one extraordinary offering.
Show More Show Less

Property Features

3033 University Terrace Northwest, Washington, District of Columbia, 20016, USA offers the following features:

Bedrooms: 6
Bathrooms: 6 Full | 2 Half
Living Area: 7400sf
Property Type: house
Status: Active
Reference ID: DCDC2230856

What's Nearby

Local businesses near 3033 University Terrace Northwest, Washington, District of Columbia, 20016, USA:

Public Transportation: < 1 mile
Gym: < 1 mile
School: < 1 mile
Hospital: < 1 mile
Police Station: < 1 mile
Grocery/Shopping Center: < 1 mile

Map