Spacious Home with Pond Views in South Lebanon

USD $494,900
742 Dorney Court, South Lebanon, Ohio, 45065, USA

Property Highlights

  • Pond views with peaceful mornings
  • Private study room included
  • Large loft and bonus room
  • Open-concept kitchen with massive island
  • Oversized garage with extra storage bump-out
  • Unfinished basement with bath rough-in

Overview

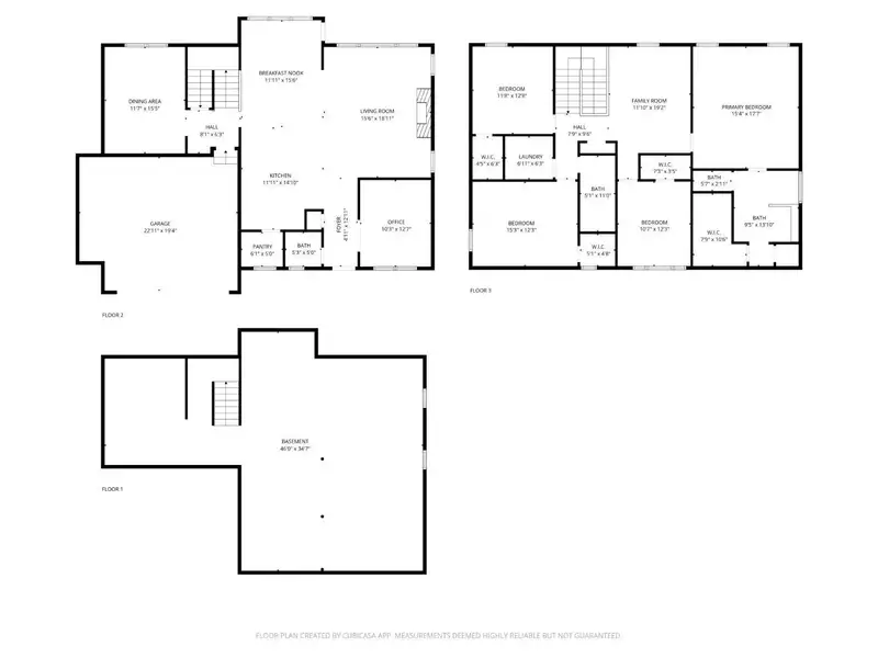
magine decorating this home for the holidays? The mantle, the porch, and the tree glistening in the giant picture window. Rare Find! Spacious 4-bedroom home in desirable South Lebanon/Little Miami Schools location with pond views! This versatile floor plan includes a private study, a large loft, and a bonus room ideal for work, play, or multi-generational living. The open-concept kitchen and living area are perfect for entertaining. Plenty of dining space and meal prep space with the massive island. The oversized garage features a 4' bump-out for added storage or workspace. Need even MORE space? The unfinished basement has a bath rough-in. Enjoy peaceful mornings overlooking the pond, all just minutes from I-71, shopping, dining, and top-rated Little Miami schools. Located on a quiet cul-de-sac in a sought-after neighborhood!
Show More Show Less

Property Features

742 Dorney Court, South Lebanon, Ohio, 45065, USA offers the following features:

Bedrooms: 4
Bathrooms: 2 Full | 1 Half
Living Area: 2800sf
Property Type: Residential
Status: Active
Reference ID: 1858916

Map