Updated Brick Ranch in Model School District with Finished Basement

USD $450,000
7 Thrushwood Road Northeast, Rome, Georgia, 30161, USA

Property Highlights

  • Located in Model School District
  • Updated kitchen with granite countertops
  • Hardwood floors throughout main level
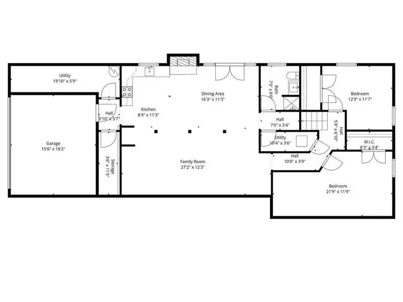
  • Finished daylight basement with full kitchen
  • Private walk-out patio and backyard
  • Primary suite with his-and-hers closets

Overview

Rare find in the sought-after Model School District-this beautifully updated brick ranch offers six bedrooms, four baths, and a fully finished daylight basement. The main level features an open, light-filled layout with hardwood floors, a cozy living room with a decorative fireplace, and a spacious kitchen with shaker cabinets, granite countertops, and an oversized island perfect for entertaining. A bright eat-in space off the kitchen overlooks the backyard. The main level also includes a walk-in pantry, laundry room, and four bedrooms, including a primary suite with his-and-hers closets and a beautifully updated bath. The finished basement includes a full kitchen, family room, dining area, two bedrooms, a full bath, washer and dryer hookup, and abundant storage-perfect for guests or multi-generational living. French doors open to a walk-out patio and a private, tree-lined backyard.
Show More Show Less

Property Features

7 Thrushwood Road Northeast, Rome, Georgia, 30161, USA offers the following features:

Bedrooms: 6
Bathrooms: 4 Full
Living Area: 3341sf
Property Type: Residential
Status: Active
Reference ID: 7665609

What's Nearby

Local businesses near 7 Thrushwood Road Northeast, Rome, Georgia, 30161, USA:

Grocery/Shopping Center: < 1 mile
School: 2.1 miles
Gym: 4.8 miles
Hospital: 5.2 miles
Police Station: 5.3 miles

Map