Move-in Ready Villa in Desirable 55+ Community

USD $240,000
7153 Southwest 93rd Avenue, Ocala, Florida, 34481, USA

Property Highlights

  • Gated 55+ retirement community
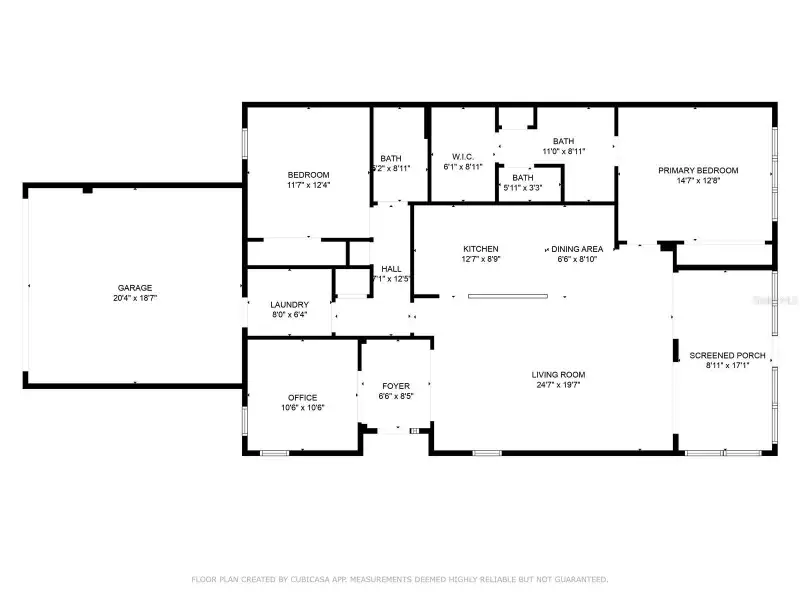
  • Open floor plan with office space
  • All-tile flooring throughout
  • Screened-in back porch
  • Resort-style pool and golf course
  • Exterior maintenance included by HOA

Overview

Welcome to this super clean and move-in ready 2 bed, 2 bath villa located in a highly desirable gated 55+ retirement community! This spacious home features an open floor plan with an additional formal living area or office, perfect for your lifestyle needs. Enjoy the ease of all-tile flooring throughout—no carpet! Relax on the generous screened-in back porch. The community offers a vibrant lifestyle with a resort-style pool, superb golf course, and endless activities to keep you engaged. Also, the HOA covers: exterior maintenance, roof (NEW ROOF to be installed in 2026), painting, power washing, landscaping, irrigation, trash. Don't miss this opportunity to live in comfort and style with this worry-free community!
Show More Show Less

Property Features

7153 Southwest 93rd Avenue, Ocala, Florida, 34481, USA offers the following features:

Bedrooms: 2
Bathrooms: 2 Full
Living Area: 1556sf
Property Type: Residential
Status: Active
Reference ID: OM709731

What's Nearby

Local businesses near 7153 Southwest 93rd Avenue, Ocala, Florida, 34481, USA:

Gym: < 1 mile
Grocery/Shopping Center: 2.3 miles
Hospital: 2.4 miles
School: 2.6 miles
Police Station: 3.4 miles
Public Transportation: 5.4 miles

Map